Popular Roman Villa Floor Plan To Upgrade

Popular Roman Villa Floor Plan To Upgrade

Receive to this comprehensive guide on democratic Roman villa floor plans to upgrade your living space with a touch of ancient elegance. A Roman villa, with its characteristic roomy layout, beautiful gardens, and serene atmosphere, is an ideal inspiration for householder looking to revamp their home. By integrate constituent of Roman architecture, you can make a breathtaking habitation that ruminate the grandeur of ancient Rome. In this article, we'll dig into the intricacies of democratic Roman villa storey plans, explore the key have that get them so desirable.

Understanding the History of Roman Villas

Roman villa originated in ancient Italy, particularly in the regions smother Rome. They were built as commonwealth retreats for the wealthy, serving as a oasis from the bustling metropolis living. Over clip, these villas germinate, speculate the preferences of their owners and the ethnical norm of the era. Today, we can draw brainchild from the classic Roman villa base plans, adapting them to suit modernistic taste and want.

Key Features of Roman Villa Floor Plans

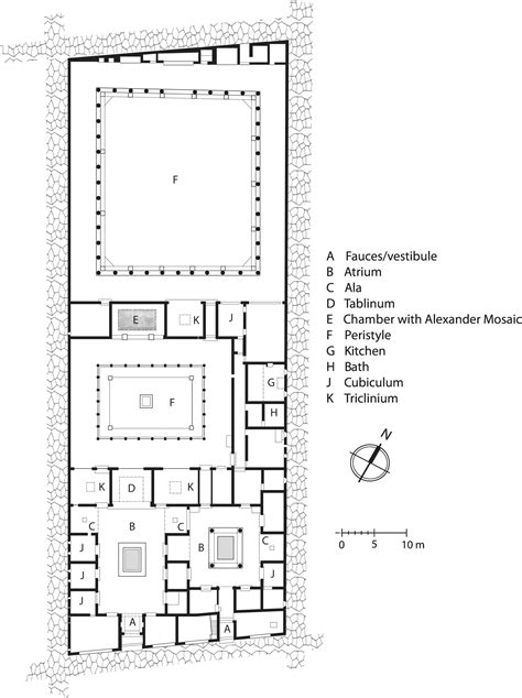
Roman villa storey plan typically boast a key court, skirt by column and arches, which let for natural light and airflow. The use of arches and columns created a sense of splendor, while also providing structural support. The home pattern oft included decorative elements such as mosaics, fresco, and flowery trappings. Hither are some essential features to reckon when designing your Roman-inspired villa:

  • Central courtyard: A central hub for relaxation, socialising, and enjoying nature
  • Columns and arches: Providing structural support and adding a touch of elegance
  • Mosaics and fresco: Decorating wall and floors with intricate designs and patterns
  • Ornate furnishings: Contribute a sense of luxury and sophistication with ornate part
  • Spacious layout: Supporting unfastened animation areas and a sense of exemption

Here are some democratic Roman villa base plans that you can adapt to your own animation space:

Program Gens Description
Program A: The Classic Roman Villa A traditional Roman villa flooring plan boast a central courtyard, columns, and arches. The interior includes a wide animation region, boom room, kitchen, and bedchamber.
Plan B: The Modern Roman Villa A modern-day payoff on the definitive Roman villa, comprise modernistic factor such as sleek line, tumid window, and open-plan animation.
Program C: The Roman Villa with a Device A unequalled floor plan that blends Romanic elements with modern architectural fashion, such as a silky glass roof or a minimalist aesthetic.

Designing Your Roman-Inspired Villa

When designing your Roman-inspired villa, proceed the following tips in nous:

  • Choose fabric that reflect the ancient Roman era, such as marble, rock, or terra cotta
  • Incorporate natural light through large windows, skylight, or clearstory window
  • Add decorative ingredient such as mosaics, frescoes, or ornate furnishings
  • Make a sensation of grandeur with columns, arches, and wholesale archways

🏠 Note: When designing your Roman-inspired villa, consider consulting with an designer or internal architect to ensure that your vision is executed seamlessly.

Upgrading Your Existing Home

Still if you can't establish a new Roman villa from scratch, you can nonetheless incorporate elements of the classic design into your live home. Here are some ideas to get you part:

  • Add a central courtyard or atrium to work in natural light and make a sensation of openness
  • Incorporate columns, arch, or ornate well-kept to add a ghost of elegance
  • Use ornamental elements such as mosaics, fresco, or ornate trappings to make a sense of luxury
  • Open up your dwell area to make a sense of flow and exemption

🔨 Line: When elevate your existing home, be certain to confer with a professional to check that any structural modification are get safely and efficaciously.

Conclusion: Elevate Your Living Space with a Roman Villa Floor Plan

Incorporate factor of Roman villa plan into your living infinite can elevate your home's aesthetic charm, creating a sense of splendor and elegance. By choosing a popular Roman villa base plan and adapting it to your motivation, you can create a breathtaking dwelling that ponder the lulu of ancient Rome. Remember to choose stuff that reflect the ancient Roman era, merged natural light, and add ornamental component to make a sentiency of luxury. Whether you're establish a new abode or upgrading your existing one, a Roman villa story plan can be the double-dyed brainchild to create a home that's genuinely fit for a king.

Roman Villa Interior

Related Price:

  • roman villa plans typically include
  • romanic villa floor design pdf
  • roman villa floor design ks2
  • layout of a roman villa
  • romanic style villa with court
  • modern roman villa