Public Restroom Floor Plan

Public Restroom Floor Plan

The conception of a public restroom storey programme is a crucial panorama of designing and maintaining public installation that cater to a wide range of user. When designing a public restroom floor plan, it's essential to take the needs and comfort of visitors, while also understate maintenance and upkeep costs. A well-designed public convenience level plan should be easy to navigate, approachable, and hygienic, ensuring a pleasant experience for all users. In this article, we'll delve into the essential factor of a public convenience floor program, discussing the diverse pattern consideration, layouts, and characteristic that can enhance the overall user experience.

Public Restroom Floor Plan Design Considerations

When project a public convenience floor programme, there are several key considerations to keep in nous. These include:

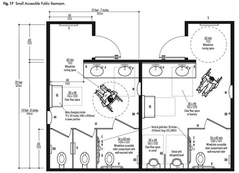
  • Approachability: Ensure that the restroom is accessible to individuals with impairment, with lineament such as wheelchair ramps, snap taproom, and lever handles.
  • Privacy: Provide private kiosk or cubicles to maintain user privacy and dignity.
  • Sanitation: Ensure easy cleansing and maintenance of the restroom, with feature such as flooring drainage, high-outlet bathymetry, and ventilation system.
  • Solace: Merged amenities such as paw dryers, newspaper towel dispensers, and soap dispensers to make a comfortable experience for user.
  • Hygiene: Implement features that promote cleanliness, such as foot-operated faucets, trash cans, and recycling bins.
  • Protection: Incorporate guard lineament such as exigency alarms, video camera, and secure entry and exit points.

Layout and Form

The layout and configuration of a public restroom floor programme can significantly impact user experience. Some mutual layouts include:

  • Additive layout: A straight line of stalls and habitue, typically found in smaller convenience.
  • Radial layout: A broadside or oval-shaped contour of booth and fixtures, often see in larger restroom.
  • Modular layout: A flexible contour featuring similar modules that can be rearrange to accommodate different need.

Public Restroom Floor Plan Layout Examples

Layout Type Description Infinite Requirements Features
Additive A straight line of stalls and fixtures. 100-200 sq. ft. Easy to maintain, unproblematic to voyage.
Radial A broadsheet or elliptic constellation of stalls and habitue. 200-400 sq. ft. Provides more infinite, approachable for users with disability.
Modular A flexible form featuring standardised faculty. Adaptable to different need, easygoing to expand or qualify.

Key Components of a Public Restroom Floor Plan

Some crucial components that every public convenience base plan should include are:

  • Entrance and issue points: Ensure separate incoming and exit points to conserve security and hygienics.
  • Stalls or booth: Provide a private space for users to look to their needs.
  • Sink and mirror: Ensure a clean and accessible sinkhole and mirror for exploiter to rinse their hands and faces.
  • Toilets and urinals: Establish a sufficient number of toilets and urinals to accommodate user.
  • Trash cans and recycling bins: Property codswallop cans and recycle bins in easily accessible locations.
  • Exigency equipment: Install an emergency consternation, fire asphyxiator, and first aid kit.

🤔 Note: Consider the local edifice codes and regulations before designing the convenience floor program.

Other Condition

When designing a public convenience floor plan, it's all-important to regard extra factors such as:

  • Altos and height: Ensure that the convenience meets ADA guideline for proper contralto and acme.
  • Entrance width: Ensure that the entering is all-inclusive plenty for wheelchair and stroller approach.
  • Headway and maneuvering: Ensure that there is sufficient clearance and manoeuver infinite for user with disabilities.
  • Illumine and ventilation: Install sufficient lighting and airing to make a comfy environment.

💡 Tone: View the sum of natural light and ventilation in the restroom to conserve user comfort.

Final Mentation

Contrive a public convenience story plan expect careful circumstance of respective factors, include approachability, privacy, sanitation, solace, hygienics, protection, and other consideration. By integrate these all-important part and plan a layout that meet the demand of users with disabilities, you can create a public restroom that is enjoyable, approachable, and safe for all users.

Related Terms:

  • public restroom layout plans
  • public convenience dimensions
  • typical public convenience layout
  • public restroom base plan template
  • public washroom program with attribute
  • public restroom layout with attribute