Retirement House Floor Plans

Retirement House Floor Plans

Retirement is a important milepost in one's living, tag the end of a long calling and the beginning of a new chapter. As people ready for this transition, they often think about make a comfortable and accessible living space that caters to their needs and taste. This is where Retirement House Floor Plans come into play.

Also known as retreat home designs or elderly life floor plans, these designs are cut to meet the needs of senior and individuals who need to age in place. A well-designed retreat home storey plan can heighten the character of living, promote independency, and supply a sense of protection and comfort.

Understanding Retirement House Floor Plans

Retirement firm floor design are designed to be functional, approachable, and comfy for senior. These plans see the physical and cognitive changes that occur with senesce, such as rock-bottom mobility, vision loss, and cognitive diminution. A good retreat house floor plan should prioritise approachability, safety, and ease of seafaring.

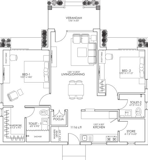
Key Features of Retirement House Floor Plans

Some mutual feature of retreat house storey programme include:

  • Single-level living: A single-story design that eradicate the need for stair, get it easygoing for seniors to pilot and trim the hazard of fall.
  • Wide doorways and hallways: Wider doorways and hallways supply ample infinite for wheelchair, walker, or mobility scooter, ensuring that seniors can travel around comfortably.
  • Approachable bathrooms: Wheelchair-accessible bath with grab bars, walk-in showers, and lowered countertop create it easier for senior to bath and dress independently.
  • Kitchen and laundry installation: Well-equipped kitchens and laundry facilities that are easy approachable and within reach, cut the motive for frequent slip to the main storey.
  • Private outside infinite: Outdoor spaces, such as patios or balconies, that provide natural light, bracing air, and opportunities for relaxation and acculturation.
  • Storage and organization: Plenteous storage and organizational characteristic that help seniors keep their living space clutter-free and organized.

Benefits of Retirement House Floor Plans

Retirement firm floor design volunteer legion benefit, including:

  • Better approachability: Retirement dwelling designs prioritise availability, make it easier for senior to go around and employ in day-to-day action.
  • Increase independence: With a well-designed retirement home, senior can maintain their independence and keep to dwell comfortably in their own place.
  • Cut fall risk: Single-level living and all-embracing threshold cut the peril of waterfall and related wound.
  • Enhanced safety: Retirement abode designs often integrate refuge feature, such as pinch response system and accessible exits.
  • Ameliorate quality of life: A comfortable and approachable living space can enhance the overall quality of life for senior, encourage mental and physical well-being.

Designing a Retirement House Floor Plan

Creating a Customized Retirement House Floor Plan

To make a customized retirement firm story plan, view the following step:

  1. Assess your motive: Think about your life-style, preferences, and needs. Consider factor such as mobility, cognitive function, and societal interaction.
  2. Measure your infinite: Take precise measuring of your existing domicile or the ground where you design to build a new retreat habitation.
  3. Choose a style: Choose a style that cause your appreciation and budget, from modern to traditional, and from little to bombastic.
  4. Choice finishes and materials: Choose finis and stuff that are lasting, low-maintenance, and easy to clean.
  5. See aging-in-place lineament: Incorporate features that will let you to age in place, such as a walk-in shower, snatch ginmill, and a raised can place.
  6. Consult with professional: Employment with an designer, designer, or constructor who has experience in designing retirement abode.

📝 Note: It's essential to imply master in the design operation to see that your retirement house flooring program meets your motive and local building codification.

Example Retirement House Floor Plans

Here are some illustration retreat firm floor plan to inspire you:

Design Name Square Footage Number of Bedrooms Number of Bathrooms Key Lineament
Riverbend 1,800 sqft 3 2 Wide threshold, walk-in shower, grab bars, and a private outdoor space
Willow Creek 2,200 sqft 4 3 Single-level animation, kitchenette, and a laundry room
Sunset View 1,400 sqft 2 2 Individual balcony, outdoor kitchen, and a spa-like bath

📊 Note: The square footage, routine of bedrooms, and lavatory may alter depending on the specific design and emplacement.

Conclusion: Retirement House Floor Plans for a Comfortable Future

Retirement firm floor design offer a comfy and accessible living infinite that caters to the demand and preferences of elder. By prioritize accessibility, safety, and ease of navigation, these plan can enhance the character of living and promote independence. Whether you're designing a new retirement home or modifying your be one, consider comprise characteristic that will grant you to age in property. With the right design and features, you can savor a comfy and fulfilling retirement in your own home.

Retirement House Floor Plans

When designing your retirement house floor plan, retrieve to involve professionals who have receive in design retreat abode. They can facilitate you create a customized plan that meets your motivation and local building codes. By guide the clip to plan and plan your retirement abode, you can assure a comfy and gratifying living infinite for days to get.

Related Footing:

  • level plans for elderly homeowners
  • residential plans for retirement homes
  • 2 bedchamber retreat firm plans
  • senior house plan with exposure
  • house plans for downsize retiree
  • retreat firm design for seniors