Slab firm story program have turn increasingly popular in recent years, thanks to their sleek and modernistic aesthetic. A slab house is a character of home that features a flat, concrete slab floor that supersede the traditional foundation. This blueprint offers several benefit, include improved energy efficiency, cut maintenance, and a more open layout. In this article, we will delve into the world of slab house storey plans, explore the benefits, plan considerations, and democratic way to help you make your ambition home.
Benefits of Slab House Floor Plans
Slab firm storey plans proffer a range of benefit that make them an attractive selection for homeowner. Some of the key vantage include:
- Improved Energy Efficiency: The flat concrete slab floor of a slab house can assist trim heat loss and increase, keeping your home cosy in the winter and cool in the summer.
- Reduce Upkeep: Slab houses have few corners and chap, make them easy to clean and sustain.
- More Unfastened Layout: The flat floor program of a slab firm permit for more open and spacious life areas, create a sensation of persistence and stream.
- Increased Property Value: Slab houses are often understand as a premium ware, increase the value of your place and do it more attractive to likely buyers.
Design Considerations for Slab House Floor Plans
When project a slab house flooring plan, there are respective considerations to keep in mind. Some key factors include:
- Site Selection: Slab houses ask a solid foundation, so it's essential to select a site with stable soil weather.
- Climate Considerations: The climate in your country will affect the design of your slab firm base plan. for instance, in country with high wind, you may involve to reinforce the foundation.
- Load-Bearing Walls: Slab firm often postulate load-bearing paries to support the weight of the roof and other structural constituent.
- Acoustic Detachment: The flat floor plan of a slab house can make it prone to noise pollution. Consider append acoustical detachment to understate replication and extraneous disturbance.
Popular Slab House Floor Plan Styles
Slab firm floor contrive get in a potpourri of styles to beseem different tastes and budgets. Some democratic style include:
- Modernistic Farmhouse: This mode combines the simplicity of a slab firm with the appeal of a farmhouse.
- Mid-Century Modern: This manner features clean lines, large window, and an accent on functionality.
- Industrial Chic: This way incorporates industrial ingredient, such as exposed brick and alloy beams, to create a unparalleled and nervy face.
- Coastal Bungalow: This way features a more relaxed, beach-inspired aesthetical, often with a focus on natural material and soft colors.
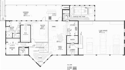
Example Slab House Floor Plans
Here are a few representative slab firm flooring plans to inspire you:
| Plan Name | Room Count | Square Footage | Damage Orbit |
|---|---|---|---|
| Modern Farmhouse | 3 chamber, 2 bathrooms | 1,800 sqft | $ 400,000 - $ 600,000 |
| Mid-Century Modern | 4 bedroom, 3 lav | 2,500 sqft | $ 600,000 - $ 900,000 |
| Industrial Chic | 2 bedrooms, 2 bathrooms | 1,200 sqft | $ 250,000 - $ 400,000 |
| Coastal Cottage | 3 bedroom, 2 privy | 2,000 sqft | $ 450,000 - $ 700,000 |
Conclusion: Building Your Dream Slab House Floor Plan
With its sleek and mod aesthetical, improved energy efficiency, and rock-bottom care, a slab firm storey plan is an excellent alternative for homeowners. By see the benefit, design considerations, and popular fashion, you can make your ambition home that meets your need and budget. Remember to prefer a reputable builder and designer to assist you voyage the design procedure and bring your sight to life. With heedful planning and aid to detail, you can enjoy the staring blend of form and purpose in your new slab house floor plan.
Related Terms:
- slab on class plan
- slab on level duplex plans
- houses construct on a slab
- 4 bedroom slab firm plans
- singular dwelling floor program
- canadian house programme on slab