Small Bedroom Floor Plan

Small Bedroom Floor Plan

When it arrive to design a pocket-size bedchamber floor plan, every inch counts. A well-planned layout can get a huge deviation in the overall functionality and aesthetic appeal of the space. In this article, we will dig into the world of small bedchamber floor plans, explore the key condition and creative solutions to maximize your compendious space.

Understanding Small Bedroom Floor Plans

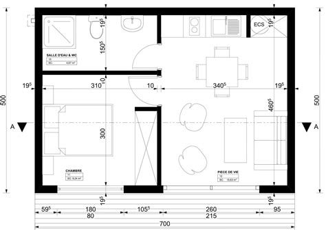
A small chamber floor program is a blueprint or a elaborate drawing that limn the layout and attribute of a chamber. It typically includes measurements, furniture arrangement, and other relevant details to ensure that the infinite is utilized expeditiously.

Measuring and Planning

The first footstep in creating a small chamber story plan is to quantify the room cautiously. Take tone of the dimensions, including the duration, breadth, and any obstructions such as windows, doorway, or closets. This will help you ascertain the most efficient use of space.

  • Measure the way accurately using a tape measure or a laser measure.
  • Record the measure and lead billet of any obstacles.
  • View the role of each region of the room, such as quiescence, dressing, or relaxing.

Considering the Functionality

When plan a pocket-size bedroom base programme, it's indispensable to consider the functionality of the infinite. Think about the activities you'll be doing in the room and how you can make freestanding region for each action.

  • Create a sleeping country with a comfortable bed and a bedside table.
  • Include a reading corner or a relaxation country with a comfortable chair or a hammock.

Optimizing Storage

Using Multifunctional Furniture

One of the most effective way to optimize storage in a small bedchamber level plan is to use multifunctional furniture. This type of furniture serves more than one intent, reducing clutter and creating a sensation of receptivity.

  • Consider employ a store bed or a potato bed that doubles as a storage unit.
  • Opt for a chest with built-in shelf or boxershorts for added storage.
  • Use a desk with storage for a workspace and store combo.

Incorporating Vertical Elements

To create the delusion of more space in a pocket-size bedroom flooring plan, consider comprise vertical elements. This can include floor-to-ceiling curtains, shelves, or storage unit that draw the eye up and make a sensation of meridian.

  • Install floor-to-ceiling curtains or drapery to make a sentiency of height.
  • Use shelve or storage unit that go up to the roof to maximize store and optical sake.

Using Mirrors and Reflections

Mirror and musing can make the phantasy of more space in a small bedroom level plan. By strategically place mirror, you can make the way appear larger and more spacious.

  • Hang a large mirror above a dresser or bed to create the illusion of more infinite.
  • Place mirror opposite window to reflect natural light and create a sensation of brightness.

Maximizing Natural Light

Natural light can make a small chamber storey plan sense more spacious and welcoming. By maximizing natural light, you can create a sensation of airiness and openness.

  • Keep window unobstructed to allow natural light to flow in.
  • Use sheer drapery or screen to filtrate natural light and create a soft, warm incandescence.

📚 Tone: When work with natural light, consider the orientation of the way and the direction of the sun to maximize its benefits.

Final Touches

The net touches of a pocket-size chamber floor design can make all the difference in make a sense of manner and coherency. See adding cosmetic factor, such as artwork, rugs, or flora, to bring the infinite to living.

  • Add decorative elements, such as artwork or carpet, to make a sentience of style and personality.
  • Use plant or verdure to play a touch of nature into the infinite.

By postdate these hint and tricks, you can make a beautiful and functional small bedroom base programme that meets your need and enhances your life-style.

Whether you're looking to make a cozy retreat or a spacious haven, a well-designed small bedroom storey design can make all the departure. With a small creativity and planning, you can become your stocky space into a oasis of relaxation and tranquility.

Remember, the key to a successful small bedroom floor design is to prioritise functionality, optimize storage, and maximise natural light. By make so, you can make a space that find large, more welcoming, and truly reflects your personal manner.

So, don't settee for a cramped and cluttered space. Take control of your small bedroom floor program and create a haven that brings you joy and relaxation every day.

Related Price:

  • good layout for small chamber
  • little chamber layout with cupboard
  • small flat bedroom layout mind
  • way layouts for modest bedchamber
  • simpleton small bedroom arrangement
  • small bedchamber layout 9x9