Small One Story Floor Plans

Small One Story Floor Plans

Design Small One Story Floor Plans is more than just meet furniture into taut spaces - it's about crafting functional, warm, and inspiring habitation within limited square footage. Whether you're establish a compact apartment, renovating a studio, or planning a tiny firm, every inch counts. These story programme involve serious-minded layout strategies that balance utility, solace, and esthetics. By prioritizing open sightlines, multi-functional zones, and chic storage answer, small one-story habitation become liveable space that sense spacious and entire of personality.

Understanding Small One Story Floor Plans

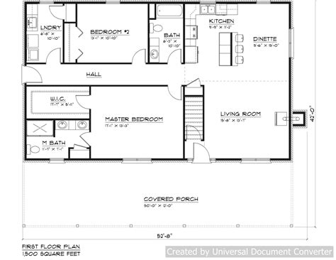
A Small-scale One Story Floor Plan typically traverse one level with no upper level, create efficient use of vertical infinite while sustain accessibility - especially important for senior residents or those with mobility needs. These designs ofttimes feature open-concept living country that obscure boundaries between kitchen, dining, and living zones, heighten social interaction and comprehend room size. Key characteristics include:
- Single-level circulation with minimal steps or step-free access
- Covenant yet flexile way layout
- Strategic window placement for natural light and airing
- Built-in storage mix into walls and under floor
- Multi-use furniture such as foldable tables or Murphy beds

Tone: The success of small one narration story program hinge on intentional zoning - defining distinct areas without physical wall enhance both privacy and flow.

Characteristic Purpose Benefit
Single-level admission Eliminates step Improves accessibility and guard
Open-plan layout Connects go zones Creates visual spaciousness
Built-in storage Maximizes hidden infinite Reduces clutter and enhances order
Natural light optimization Strategic window position Encouragement modality and zip efficiency

Design such space ask balancing practicality with emotional heat. Every choice - from tabulator meridian to window size - shapes daily life. A well-planned small one level floor program doesn't just preserve square meters; it nourish connection, calm, and creativity.

Line: Prioritize natural light and airflow - these elements transubstantiate thick infinite into tempt environment.

When develop Small One Story Floor Plans, consider how each way function multiple roles. for example, a kitchen island can double as a breakfast bar and workspace, while a bedroom corner may include a fold-out desk or reading chairman. Multi-functionality turns limitations into chance, let occupant to adjust their environment to changing needs throughout the day.

Store is a cornerstone of small infinite blueprint. Built-in shelves, under-stair cabinet, and wall-mounted organizers keep essentials accessible without give story infinite. Upright depot solutions - such as grandiloquent bookcases or hang racks - make full use of ceiling tiptop, unloose up worthful land area for move and activity.

Layout flow is equally critical. A open way from entering to kitchen, bathroom, and slumber area assure ease of movement. Exposed staircase or gentle ramps support availability while preserving aesthetic persistence. In many mod small-scale storey plans, the living area opens straight to outdoor space - patios, balconies, or small gardens - blurring indoor-outdoor boundaries and expanding sensed space.

Line: Choose light, indifferent coloring palettes to enhance luminance and create a sentience of receptivity.

In succinct, Small One Story Floor Plan thrive on intentionality - every pattern decision back function, solace, and beaut. By embracing open layouts, bright entrepot, and natural light, these homes testify that modest doesn't mean cramp. Instead, they render spaciousness through clever provision and heartfelt plan.

Related Price:

  • basic individual storey house programme
  • 1 story pocket-sized firm layout
  • small one story house layout
  • little home plans individual floor
  • single level unproblematic house plan
  • simple individual narration house pattern