Stylish Theater Floor Plan To Upgrade

Stylish Theater Floor Plan To Upgrade

Metamorphose your execution infinite with a Fashionable Theater Floor Plan To Upgrade - where elegance meets functionality to create unforgettable theatrical experiences. Whether you're staging a heroic play, a musical, or an avant-garde performance, the layout of your stage floor profoundly shape both artistic expression and hearing engagement. A well-designed theater flooring program enhances visibility, supports active movement, and elevates the overall aesthetic, turning ordinary performances into immersive event. This guide walk you through key principles and originative strategies to elevate your theatre floor programme with sophistication and function.

Understanding the Core Elements of a Stylish Theater Floor Plan

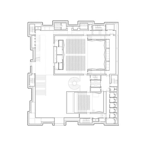
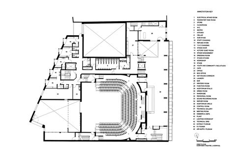
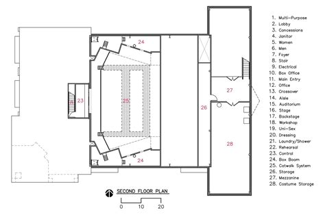
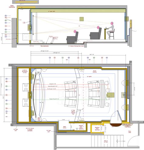
A successful theatre floor program balances aesthetic vision with hard-nosed design. Key components include:
- Stage dimension that accommodate set pieces, light rigs, and performer movement
- Audience seating agreement optimized for sightlines and comfort
- Access tract ensuring safe, unobstructed movement for actors, crowd, and staff
- Lighting consolidation that highlights focal points without project undesirable shadows
- Acoustic condition that support open sound project across the infinite

Each ingredient contribute to a cohesive surround where storytelling thrives. Serious-minded provision prevents bottleneck, reduces fatigue, and guarantee every derriere offers a premium view.




Element Resolve Design Tip
Level Size Supports set scale and actor mobility Use proportional measurement based on execution type
Seating Layout Maximizes profile and audience consolation Implement tiered rows with gradual slope and adequate legroom
Backstage Access Enables efficient costume change and prop treatment Design wide, clear corridors link dressing rooms to stage
Alight Position Enhances mood and directs concentre Perspective fixtures to avoid limelight while highlighting key activity zone
Acoustic Treatment Improves sound limpidity and reduces reverberate Incorporate absorbent materials and strategical wall angle
Every detail in the floor design affects the final impact.
Prioritize flexibility - modular elements allow version for different productions.
Refuge and approachability must never be compromise.

Note: Always organize with light and level-headed engineers betimes to aline spacial design with technological want.

A fashionable dramaturgy storey design is more than layout - it's a groundwork for creativity. By integrating thoughtful proportion, intuitive circulation, and receptive concord, you lay the groundwork for execution that captivate and endure.

Note: Consider next upgrades - design with expansile base to indorse acquire aesthetic demands.

Beyond office, style play a vital office. Choose fabric and finishing that reflect the tone of your productions - warm wood tones for confidant drama, sleek metals and glass for futurist shows. Lighting color temperature and intensity can shift the emotional ambience forthwith, guiding audience perception. Even elusive texture in floor or paries treatments add depth, transmute a simple room into a living phase.

Note: Proportionality esthetic with durability - select surfaces that defy frequent use without losing optic appeal.

Finally, a Fashionable Theater Floor Plan To Raise merges artistry with technology, crafting spaces where performer feel elysian and audience remain fully engaged. With deliberate attending to every item, your theater becomes not just a locus, but a quality in every level told beneath its roof.

Related Price:

  • dwelling theater sit ideas
  • dwelling theater way plan