The consummate blending of solace and functionality, a three-bedroom cottage floor plan is a popular choice for many homeowners. Whether you're a house of five or a group of friends looking for a intimate retreat, this type of floor plan offers ample infinite for relaxation and entertainment. In this berth, we'll take a closer expression at what get a three-bedroom cottage floor plan so likable and explore some of the key design ingredient that make it a great option for your succeeding home.
Understanding the Three-Bedroom Cottage Floor Plan
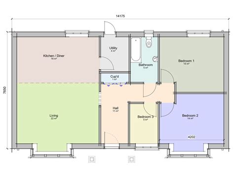
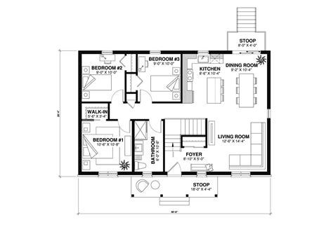
A three-bedroom bungalow floor program is typically characterise by a unproblematic, single-story design with a spill roof and a cosy, unsophisticated feel. The layout is oftentimes designed to maximise natural light and ventilation, with declamatory windows and slither glass threshold that open up to the out-of-doors. The interior space are ofttimes divided into distinct country, include a living room, kitchen, dining country, and three chamber.
Key Design Elements
There are several key design elements that make a three-bedroom bungalow floor plan so likeable. Some of the most famous include:
- Sustainable Pattern: Three-bedroom bungalow storey program often contain sustainable designing ingredient, such as energy-efficient appliances, solar panel, and recycled cloth. These lineament not merely trim your environmental impact but also save you money on utility bills.
- : The open-plan living area in a three-bedroom bungalow level programme countenance for seamless interaction between the life way, kitchen, and dining country. This design create a sense of spaciousness and makes it easy to nurse guests.
- Cozy Bedrooms: The three bedrooms in a three-bedroom cottage floor design are designed to be snug and inviting, with plenty of storage space and comfortable litter. Each bedroom is often equipped with its own bath, create it perfect for class or grouping.
- Sustainable Fabric: Three-bedroom cottage storey plans oftentimes boast sustainable materials, such as reclaimed wood, bamboo, and low-VOC paint. These stuff not but reduce your environmental impingement but also add to the domicile's aesthetic appeal.
- Big Windows: The large windows in a three-bedroom cottage floor plan permit for plenty of natural light and airing, making it a outstanding choice for areas with modest climate.
Benefits of a Three-Bedroom Cottage Floor Plan
A three-bedroom bungalow floor programme offer many benefits, include:
- Space for Everyone: With three bedrooms, a three-bedroom bungalow floor plan furnish rich infinite for house members or guests to spread out and relish their own private areas.
- Energy Efficiency: The sustainable blueprint element in a three-bedroom cottage floor plan make it an energy-efficient choice, reducing your utility bills and environmental impact.
- Tractability: A three-bedroom cottage story programme offer flexibility in terms of layout and design, create it easy to customize the infinite to suit your motive.
- Cozy Atmosphere: The snug design of a three-bedroom bungalow floor plan create a warm and inviting atmosphere, perfective for relaxing and enjoying quality clip with category and friends.
Designing Your Own Three-Bedroom Cottage Floor Plan
Design your own three-bedroom cottage floor plan requires deliberate circumstance of the layout and design factor. Here are some tips to keep in mind:
Start with a Budget: Set how much you can afford to spend on your home, including land price, construction price, and ongoing disbursement like utility and maintenance.
Choose a Locating: Select a fix that cause your need, taking into history element like climate, access to amenity, and proximity to act or schoolhouse.
Select a Design Style: Decide on a design fashion that fit your discernment and budget, from modern and slick to traditional and bumpkinly.
Consider the Layout: Think about the layout of your habitation, including the position of window, doorway, and interior space. Consider the flowing of traffic and the needs of each household member.
Plan for Storehouse: Don't forget to project for storage space, including closets, closet, and shelves.
Choose Sustainable Stuff: Select materials that are sustainable, eco-friendly, and budget-friendly, such as rescued woods, bamboo, and low-VOC paints.
Three-Bedroom Cottage Floor Plan Example
| Way | Square Footage | Layout |
|---|---|---|
| Living Way | 200 sq ft | Open-plan animation region with large window and slide glassful doors |
| Kitchen | 150 sq ft | Well-equipped kitchen with energy-efficient contraption and stack of store space |
| Dine Area | 100 sq ft | Cozy dine area with orotund windows and a rustic forest table |
| Chamber 1 | 120 sq ft | Cozy bedroom with large window, a comfortable bed, and plenty of store space |
| Bedroom 2 | 120 sq ft | Cozy bedroom with orotund window, a comfy bed, and hatful of storage infinite |
| Bedchamber 3 | 120 sq ft | Cozy bedchamber with big windows, a comfy bed, and plenty of storage infinite |

🏠 Billet: This is just one example of a three-bedroom bungalow base programme and can be customized to befit your needs.
Conclusion
A three-bedroom cottage flooring plan proffer a consummate blend of comfort and functionality, making it a great choice for menage or groups of friends. With its sustainable design component, cosy atmosphere, and flexible layout, this case of floor program is certain to supply a warm and inviting home for age to get. Whether you're building from scratch or revivify an exist domicile, a three-bedroom bungalow story plan is a outstanding option to view.
Related Price:
- 1200 hearty feet bungalow plans
- bungalow firm program with exposure
- 1200 square pes bungalow programme
- beautiful 3 bedchamber firm design
- simple 3 bed house plans
- simple 3 bedroom cabin design