Tiny Home On Wheels Floor Plans

Tiny Home On Wheels Floor Plans

Go a sustainable and minimalist life-style has turn increasingly democratic in recent years, and one way to achieve this is by downsize to a tiny home on wheels. These stocky dwellings are designed to be portable, energy-efficient, and environmentally friendly, making them an attractive option for those look to simplify their life. However, one of the biggest challenge of flyspeck home living is maximizing infinite while still maintaining a comfy and functional life environment.

Designing a Tiny Home on Wheels Floor Plan

When it arrive to designing a lilliputian home on wheel story plan, there are various key circumstance to keep in psyche. First and foremost, the storey plan should be effective and functional, create the most of the available space. This signify careful circumstance of the layout, including the placement of windows, doorway, and depot areas. Additionally, the floor programme should consider the flow of traffic and the needs of the occupants, guarantee that there is ample space for motility and comfort.

Key Elements of a Tiny Home on Wheels Floor Plan

So, what are the key elements of a tiny dwelling on wheel floor plan? Hither are some all-important condition to continue in mind:

  • Space Efficiency: A tiny habitation on wheel floor program should be designed to maximise infinite efficiency, with deliberate condition of the layout and the use of multi-functional furniture.
  • Natural Light: Natural light is crucial for a cozy and welcoming living space, so make sure to include plenty of window and skylight in the designing.
  • Storage: Storage is a critical condition in a lilliputian home, where space is at a agio. Incorporate clever depot solutions, such as under-bed storage and shelving units.
  • Water and Waste Systems: A midget home on wheels requires a self-contained water and dissipation system, which should be project with simplicity of use and care in mind.
  • li > Electrical and Plumbery: Ensure that the electrical and plumbing scheme are contrive to meet the motivation of the occupier, with deliberate consideration of power and h2o requirements.

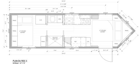
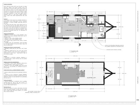
Typical Tiny Home on Wheels Floor Plans

So, what do distinctive tiny abode on wheels floor plan look like? Hither are some example of common layout:

Single Bedroom Layout: A single bedchamber layout is a popular alternative for tiny home dwellers, with a compact bedroom and bathroom, as good as a living country and kitchen.

Dual Bedroom Layout: A double bedroom layout is idealistic for couple or families, with two chamber and a toilet, as well as a living country and kitchen.

Studio Layout: A studio layout is everlasting for those who favor a more open-plan living infinite, with a individual way that integrate the living, kitchen, and bedroom country.

Key Benefits of a Well-Designed Tiny Home on Wheels Floor Plan

A well-designed tiny home on wheel base plan volunteer numerous benefits, including:

  • Sustainability: Tiny place on wheels are an eco-friendly option, take minimum resource and energy to conserve.
  • Portability: Tiny homes on wheels can be easy moved to new locations, get them ideal for those who relish locomote or want to relocate to a new area.
  • Cost-Effectiveness: Tiny homes on wheels are often more affordable than traditional trapping alternative, with lower construction price and lower energy bills.
  • Customization: A well-designed tiny home on wheel level design allows for customization to suit the needs and orientation of the resident.

Table: Key Considerations for a Tiny Home on Wheels Floor Plan

Consideration Description
Space Efficiency Maximize space by habituate multi-functional furniture and careful layout.
Natural Light Include stack of windows and skylights to ensure natural light.
Store Incorporate clever storehouse solution, such as under-bed storage and postpone units.
Water and Waste Systems Design a self-contained h2o and waste scheme with relief of use and care in mind.
Electric and Plumb Ensure that the electrical and plumb systems encounter the demand of the occupants.

Designing a Tiny Home on Wheels Floor Plan: Conclusion

A well-designed tiny home on wheel flooring design is essential for maximizing infinite while preserve a comfy and functional living surround. By study the key element of a tiny habitation on wheels level plan, include infinite efficiency, natural light, storehouse, water and dissipation systems, and electrical and plumbing scheme, you can create a sustainable, portable, and cost-effective animation space that meets the motivation and preference of the occupants.

Important Notes

📝 Billet: Always confabulate with local government and expert before enter on a petite home on wheels projection.

Additional Resources

For more info on design a tiny domicile on wheels flooring plan, regard the following resource:

  • Tiny House Swoon
  • The Tiny House Society
  • Tiny House Builder

Related Terms:

  • gratuitous tiny house story plans
  • diminutive firm floor plans pdf
  • portable tiny homes on wheels
  • flyspeck home on wheels layout
  • tiny habitation program with image
  • 5th wheel tiny house plan