Top 12X32 Floor Plans For Every Space

Top 12X32 Floor Plans For Every Space

When it arrive to design a infinite, one of the most critical decisions is choosing the right floor plan. With so many options usable, it can be overwhelming to decide which one suits your motive. In this article, we will explore the top 12x32 floor plans for every space, highlighting their unequaled features, benefits, and covering. Whether you're make a new domicile, refurbish an existing one, or just looking for inspiration, this clause will guide you through the process of take the perfect floor plan for your task.

Understanding 12x32 Floor Plans

A 12x32 storey plan is a democratic choice for several types of infinite, include place, apartments, authority, and retail store. The "12x32" refers to the dimensions of the storey plan, with the 12-foot breadth and 32-foot length render a square footage of approximately 384 substantial feet. This sizing is idealistic for compact space that command efficient use of infinite without sacrifice functionality.

Benefits of 12x32 Floor Plans

Before we dive into the top 12x32 level plans, let's explore the benefit of choosing this floor plan sizing:

  • Effective use of space: With a 12x32 floor program, you can maximise the use of infinite without feel cramped or submerge.
  • Cost-effective: Edifice or revivify a infinite with a 12x32 storey plan can be more cost-effective compare to large floor plans.
  • Tractability: This floor design sizing is various and can be adjust to various purposes, including residential, commercial-grade, or mixed-use infinite.

Top 12x32 Floor Plans for Every Space

Now that we've extend the benefit of 12x32 floor plans, let's explore the top design that cater to different spaces:

Residential 12x32 Floor Plans

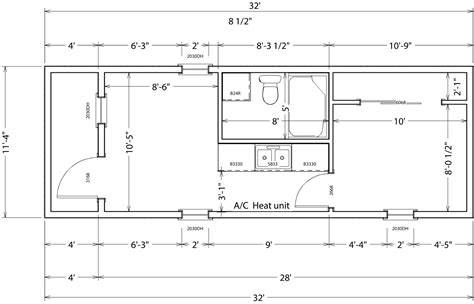
  1. Single-Family Home: This floor plan feature a single-story design with two bedchamber, one bathroom, and an open-plan living area.
    • Dimensions: 12x32
    • Substantial Footage: 384 sq. ft.
    • Features: Two bedrooms, one bathroom, open-plan animation area, kitchen, and laundry way.
  2. Townhouse: This design is ideal for townhouse living, featuring two bedrooms, one bathroom, and a cosy endure area.
    • Attribute: 12x32
    • Solid Footage: 384 sq. ft.
    • Characteristic: Two bedrooms, one lav, open-plan living region, kitchen, and laundry room.
  3. Bungalow: This capture floor design features a single-story plan with two bedchamber, one bathroom, and a roomy living country.
    • Dimensions: 12x32
    • Square Footage: 384 sq. ft.
    • Feature: Two bedrooms, one bathroom, open-plan living area, kitchen, and laundry room.

Commercial 12x32 Floor Plans

  1. Office Infinite: This plan is thoroughgoing for minor businesses or startups, have an open-plan workspace, encounter room, and entrepot country.
    • Dimension: 12x32
    • Straight Footage: 384 sq. ft.
    • Feature: Open-plan workspace, meeting room, entrepot region, and kitchenette.
  2. Retail Storage: This floor plan is idealistic for small retail memory or boutique, featuring a wide sales area, storage room, and bathroom.
    • Property: 12x32
    • Square Footage: 384 sq. ft.
    • Lineament: Broad sale area, depot room, bathroom, and kitchenette.

Mixed-Use 12x32 Floor Plans

  1. Loft Conversion: This design is arrant for loft conversions, have a spacious open-plan life region, kitchen, and lavatory.
    • Dimensions: 12x32
    • Square Footage: 384 sq. ft.
    • Features: Broad open-plan animation area, kitchen, bathroom, and store area.
  2. Studio Apartment: This floor plan is idealistic for studio flat, feature an open-plan living area, kitchen, and bathroom.
    • Attribute: 12x32
    • Substantial Footage: 384 sq. ft.
    • Lineament: Open-plan life area, kitchen, bathroom, and storage region.

Industrial 12x32 Floor Plans

  1. Warehouse Conversion: This design is perfect for warehouse conversions, featuring a roomy open-plan region, storehouse room, and can.
    • Dimensions: 12x32
    • Square Footage: 384 sq. ft.
    • Lineament: Broad open-plan region, storehouse room, can, and kitchenette.
  2. Art Studio: This base design is ideal for art studio, boast a spacious open-plan area, storage way, and can.
    • Attribute: 12x32
    • Square Footage: 384 sq. ft.
    • Feature: Roomy open-plan country, storage room, lav, and kitchenette.

Healthcare 12x32 Floor Plans

  1. Clinic: This pattern is perfect for pocket-size clinics, have a waiting country, reference room, and scrutiny room.
    • Property: 12x32
    • Satisfying Footage: 384 sq. ft.
    • Features: Waiting area, consultation room, exam room, and storage region.
  2. Dental Office: This base plan is idealistic for pocket-sized dental authority, featuring a expect region, consultation way, and handling way.
    • Dimensions: 12x32
    • Satisfying Footage: 384 sq. ft.
    • Characteristic: Waiting area, consultation way, treatment way, and storage region.

School 12x32 Floor Plans

  1. Classroom: This pattern is thoroughgoing for small classrooms, featuring a teacher's desk, student seating country, and store room.
    • Dimensions: 12x32
    • Hearty Footage: 384 sq. ft.
    • Features: Teacher's desk, bookman seating area, storehouse way, and john.

📚 Billet: Remember to consult local building code and regulation before finalizing your base plan blueprint.

Conclusion

Choosing the right storey design for your space can be a pall chore, but with the correct guidance, you can make an informed decision. The top 12x32 flooring plans we've research in this clause cater to various spaces, including residential, commercial, mixed-use, industrial, healthcare, and schooling settings. By translate the benefit and characteristic of each design, you can select the perfect storey program for your labor, ensuring efficient use of space, cost-effectiveness, and flexibility.

Image 1: Single-Family Home Floor Plan

Single-Family Home Floor Plan

Image 2: Townhouse Floor Plan

Townhouse Floor Plan

Image 3: Bungalow Floor Plan

Bungalow Floor Plan

Image 4: Office Space Floor Plan

Office Space Floor Plan

Image 5: Retail Store Floor Plan

Retail Store Floor Plan

Image 6: Loft Conversion Floor Plan

Loft Conversion Floor Plan

Image 7: Studio Apartment Floor Plan

Studio Apartment Floor Plan

Image 8: Warehouse Conversion Floor Plan

Warehouse Conversion Floor Plan

Image 9: Art Studio Floor Plan

Art Studio Floor Plan

Image 10: Clinic Floor Plan

Clinic Floor Plan

Image 11: Dental Office Floor Plan

Dental Office Floor Plan

Image 12: Classroom Floor Plan

Classroom Floor Plan

Table: 12x32 Floor Plan Comparison

Design Dimensions Square Footage Features
Single-Family Home 12x32 384 sq. ft. Two bedrooms, one bathroom, open-plan life country, kitchen, and laundry way.
Townhouse 12x32 384 sq. ft. Two bedrooms, one privy, open-plan living area, kitchen, and laundry room.
Bungalow 12x32 384 sq. ft. Two bedrooms, one john, open-plan animation area, kitchen, and laundry room.
Office Infinite 12x32 384 sq. ft. Open-plan workspace, encounter way, depot area, and kitchenette.
Retail Store 12x32 384 sq. ft. Spacious sales region, storage way, john, and kitchenette.
Loft Conversion 12x32 384 sq. ft. Spacious open-plan living area, kitchen, bathroom, and storage country.
Studio Apartment 12x32 384 sq. ft. Open-plan animation region, kitchen, bathroom, and storage country.
Warehouse Changeover 12x32 384 sq. ft. Spacious open-plan area, depot way, john, and kitchenette.
Art Studio 12x32 384 sq. ft. Spacious open-plan area, storage way, bathroom, and kitchenette.
Clinic 12x32 384 sq. ft. Await country, reference way, interrogation way, and storage area.
Dental Office 12x32 384 sq. ft. Waiting area, reference room, treatment way, and store region.
Classroom 12x32 384 sq. ft. Teacher's desk, student invest area, store way, and toilet.

💡 Note: This article is for informational purposes just and should not be considered as professional advice. Consult local building codes and rule before finalizing your floor program design.

Related Terms:

  • 12 x 32 tiny dwelling
  • 12x32 tiny floor plan