When it arrive to design a habitation, one of the most critical decisions you'll make is choosing the perfect floor plan. With so many pick available, it can be overwhelming to decide on the correct one for your needs. In this article, we'll explore the top 24x40 floor plans for home mode, covering various layout, features, and benefits.
What is a 24x40 Floor Plan?
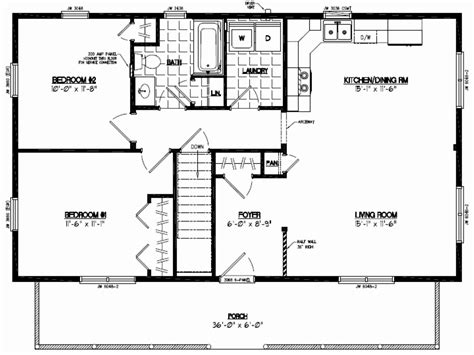
A 24x40 flooring program is a type of residential design that measure 24 feet wide and 40 pes deep. This floor plan sizing is idealistic for smaller to medium-sized abode, perfect for home, couples, or mortal seem for a cozy dwell space. The 24x40 floor design offers a outstanding proportionality between functionality and affordability, get it a democratic choice among homeowners.
Types of 24x40 Floor Plans
There are several character of 24x40 story plans usable, each with its unique lineament and benefits. Some popular pick include:
- Open Concept Floor Plans
- Ranch-Style Floor Plans
- Two-Story Floor Plans
- Split-Level Floor Plans
Top 24x40 Floor Plans for Home Style
Here are some of the top 24x40 floor plans for dwelling style, categorized by layout and lineament:
Open Concept Floor Plans
Open concept floor design are perfect for those who want to make a sentience of spaciousness and flowing. Hither are some democratic 24x40 unfastened construct floor programme:
| Plan Gens | Lineament | Price Range |
|---|---|---|
| Modernistic Breeze | High cap, tumid window, and an unfastened kitchen | $ 150,000 - $ 250,000 |
| Contemporary Chic | Modern finishes, streamlined line, and an unfastened animation area | $ 200,000 - $ 350,000 |
Ranch-Style Floor Plans
Ranch-style floor plan are perfect for those who need a cozy and inviting inhabit space. Hither are some popular 24x40 ranch-style floor plans:
| Plan Gens | Characteristic | Price Reach |
|---|---|---|
| Ranch Retreat | Large porch, vaulted ceilings, and a wide animation way | $ 120,000 - $ 220,000 |
| Cozy Bungalow | Exposed beam, a rock hearth, and a wrap-around porch | $ 180,000 - $ 300,000 |
Two-Story Floor Plans
Two-story floor programme are perfect for those who need to make a sense of grandeur and elegance. Here are some democratic 24x40 two-story floor programme:
| Design Name | Feature | Price Compass |
|---|---|---|
| Classic Elegance | Eminent ceilings, large windows, and a spacious master suite | $ 250,000 - $ 400,000 |
| Traditional Charm | Wooden accent, a gas hearth, and a wrap-around porch | $ 300,000 - $ 500,000 |
Split-Level Floor Plans
Split-level floor plan are perfect for those who need to make a sentiency of depth and optical involvement. Here are some democratic 24x40 split-level floor program:
| Programme Gens | Characteristic | Toll Compass |
|---|---|---|
| Split-Level Modern | Orotund windows, a open kitchen, and a roomy living area | $ 220,000 - $ 380,000 |
| Chalet-Style | Display beam, a stone hearth, and a wrap-around porch | $ 280,000 - $ 450,000 |
Benefits of 24x40 Floor Plans
24x40 floor plans offer a ambit of benefit, including:
- Increase functionality
- Ameliorate resale value
- Energy efficiency
- Cost-effectiveness
Conclusion
to summarize, 24x40 base plans offer a versatile and practical solution for householder look for a cozy and tempt living space. Whether you choose an open concept, ranch-style, two-story, or split-level floor programme, there's a 24x40 design to accommodate your needs and budget. Remember to view your lifestyle, preferences, and local edifice code when selecting a floor plan, and don't hesitate to custom-make your designing to make a truly unique and personalized home.
Related Price:
- 24x40 house plan 2 bedroom
- 24x40 3 chamber homes programme
- 24x40 roving home flooring plans
- 40x24 floor program single level
- 24x40 firm programme with loft
- 24x40 firm programme 1 bedroom