Top 3 Bed Apartment Floor Plan For Modern Homes

Top 3 Bed Apartment Floor Plan For Modern Homes

Receive to the macrocosm of modernistic place design, where functionality and manner go hand-in-hand. When it comes to select the perfect floor plan for your new bed flat, there are countless options to consider. However, not all floor plans are make equal, and some stand out from the respite due to their surpassing design and functionality. In this article, we will search the top 3 bed apartment floor plans that are certain to impress.

The Benefits of a 3-Bed Apartment Floor Plan

When it comes to apartment living, a 3-bedroom floor plan is often the perfect selection for families or individual who need a bit more infinite. These floor plan typically offer a spacious life country, multiple chamber, and ample storage infinite. With a 3-bedroom floor design, you can enjoy the benefit of apartment living without sacrifice too much infinite or functionality.

Top 3 Bed Apartment Floor Plan For Modern Homes

Here are three of the most popular 3-bedroom apartment storey design that are perfect for modernistic home:

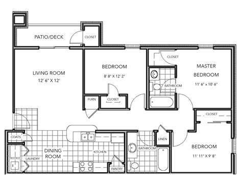
Layout Features Benefit
Unfastened Concept Living Large living country, kitchen, and dining space all in one Make a sensation of spaciousness, perfect for nurse
Split Bedroom Layout Two bedchamber on paired side of the apartment, with a tertiary chamber in between Provides privacy for each bedroom, nonsuch for families or roomie
Corner Unit Turgid windows, high roof, and hatful of natural light Creates a sentiency of sumptuosity, perfect for those who want to feel like they're in a high-end apartment

Design Considerations for a 3-Bed Apartment Floor Plan

When take a 3-bedroom floor programme, there are various design consideration to continue in mind. Hither are a few things to see:

  • Space requirements: Reckon how much space you ask for your furniture, decor, and lifestyle.
  • Bathroom layout: Think about how you'll use your bathroom space, and choose a layout that work best for you.
  • Closet space: Consider the amount of closet infinite you need, and choose a layout that cater sizable storage.
  • Window emplacement: Consider about the arrangement of windows and how they'll impact natural light and airing.

Modern Amenities for a 3-Bed Apartment Floor Plan

When prefer a 3-bedroom flat floor plan, it's all-important to consider the modernistic amenity that come with it. Hither are a few things to appear for:

  • High-end finishes: Look for apartment with high-end finishes, such as hardwood floors, granite countertops, and stainless sword contraption.
  • Smart habitation engineering: Consider apartment with smart home engineering, such as bright thermostat, lighting, and protection system.
  • Amenity spaces: Look for flat with partake amenity infinite, such as a gym, pond, and community way.
  • Unripe features: Consider flat with green features, such as energy-efficient convenience, solar venire, and rain harvesting systems.

Key Considerations for a 3-Bed Apartment Floor Plan

When choosing a 3-bedroom apartment base programme, there are respective key consideration to proceed in brain. Here are a few things to think about:

  • Location: Deal the location of the apartment, include proximity to public transferral, school, and conveniences.
  • Lease terms: Think about the length of the letting and any likely renewal options.
  • Rent: Take the rent and whether it's within your budget.
  • Accessibility: Look for apartment that are uncommitted for immediate move-in or have a little waiting list.

📝 Note: Be sure to enquiry the country and flat complex thoroughly before making a decision.

Final Thoughts on 3-Bed Apartment Floor Plans

When it comes to prefer a 3-bedroom apartment floor plan, there are unnumbered options to consider. However, by focalize on plan considerations, mod amenities, and key considerations, you can happen the perfect flooring program for your need and budget. Whether you're a new pro, a family, or a retiree, a 3-bedroom flat floor program can cater the perfect blend of functionality and fashion.

Summarizing the Key Takeaways

The key takeaway from this clause are:

  • Consider your space necessity, lav layout, closet space, and window location when take a 3-bedroom floor program.
  • Look for flat with high-end finishes, chic home engineering, share amenity spaces, and green lineament.
  • Explore the area and apartment complex thoroughly before making a conclusion.

📚 Note: Take your clip when researching and selecting the perfect flat story plan.

Final Words

to resume, choosing the correct 3-bedroom flat floor program can get all the difference in your life experience. By regard pattern consideration, modernistic amenity, and key consideration, you can happen the perfect level programme for your needs and budget. Don't be afraid to ask questions and research different selection until you find the one that's right for you.

Image: Modern Apartment Living

Image description: A beautifully designed modern flat with a spacious living area, streamlined kitchen, and large window that let in hatful of natural light. The apartment has a smart and modernistic aesthetic, with hatful of amenities to bask.

Related Terms:

  • modernistic 3 bedchamber apartments