Top Medical Office Floor Plan For Every Space

Top Medical Office Floor Plan For Every Space

As healthcare facility preserve to germinate and adapt to change patient needs, it's essential to have a well-designed aesculapian office floor plan that maximize efficiency, safety, and comfort. A well-planned layout can help reduce waiting times, improve patient flowing, and enhance overall patient satisfaction. In this clause, we'll explore the top medical office base plan for every space, extend key considerations, design principles, and pragmatic instance to help healthcare professionals create an optimum layout for their facility.

Understanding Medical Office Floor Plan Requirements

When plan a aesculapian authority floor programme, several factors want to be taken into chronicle. These include:

  • Functionality: The layout should ease smooth patient flow, leisurely navigation, and efficient use of infinite.
  • Accessibility: The plan should assure easy approach for patient with disabilities, as well as for healthcare professionals and faculty.
  • Space optimization: The layout should maximize available infinite, minimize waste areas and secure optimum use of resource.
  • Acoustic and lighting: The plan should contain efficient soundproofing and light answer to create a comfy and restful environment.
  • Engineering integrating: The layout should accommodate necessary engineering, such as electronic medical records (EMRs) and telemedicine equipment.

Design Principles for Medical Office Floor Plans

To create an effective medical authority level programme, respective design principle should be followed:

  • Tractability: The layout should be flexible and adaptable to fit changing patient needs and new technologies.
  • Scalability: The plan should be scalable to fit growing or reduce staff, patient populations, or service offerings.
  • Flow and circulation: The layout should promote bland patient flow and leisurely piloting through the installation.
  • Open signage: The design should contain clear and reproducible signage to aid patients and staff pilot the facility.

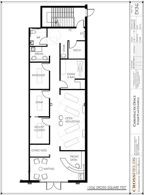
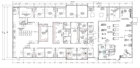
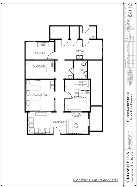
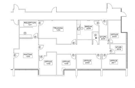
Practical Examples of Medical Office Floor Plans

Hither are some hard-nosed examples of aesculapian office flooring plans that illustrate key blueprint principles:

Layout Type Description Key Features
Open-Concept Layout This layout features an open-concept plan, with minimal barrier between different region of the facility. Key lineament: easygoing patient stream, minimum wait time, open signage.
Modular Layout This layout feature a modular design, with freestanding areas for different service or section. Key characteristic: tractability, scalability, clear separation of service.
Linear Layout This layout boast a analogue design, with a clear path for patients to follow through the facility. Key lineament: easy patient flowing, clear signage, minimal wait clip.

💡 Note: These layout examples are illustrative and may not be suitable for every aesculapian office facility.

Key Considerations for Medical Office Floor Plans

When plan a medical bureau storey plan, various key considerations should be taken into chronicle:

  • Patient flow and circulation: The layout should encourage smooth patient flow and easygoing pilotage through the facility.
  • Staff workflow and efficiency: The plan should facilitate efficient workflow and minimise unnecessary postponement or kerfuffle for staff.
  • Accessibility and inclusivity: The layout should see easy access for patient with disabilities and promote a welcoming and inclusive environment.
  • Acoustical and lighting plan: The pattern should comprise effective soundproofing and illuminate solutions to make a comfy and restful environment.

👥 Billet: The American with Disabilities Act (ADA) and other availability guidelines should be deal when designing aesculapian agency facilities.

Technology Integration in Medical Office Floor Plans

As technology continues to acquire and play a big role in healthcare, aesculapian function flooring plans should be designed to fit necessary technology:

  • Electronic aesculapian records (EMRs): The layout should integrate infinite for EMR workstations and assure leisurely approach to patient record.
  • Telemedicine equipment: The pattern should accommodate necessary telemedicine equipment and see easygoing connectivity.
  • Aesculapian imagery equipment: The layout should incorporate infinite for medical imagery equipment, such as MRI or CT scanner.

💻 Line: Technology integrating may require extra electrical and meshing substructure, which should be regard during the design form.

Conclusion

to summarize, a well-designed aesculapian office level plan is indispensable for create an efficient, safe, and comfortable surroundings for patients and faculty. By see key design principles, considering hard-nosed examples, and incorporating necessary engineering, healthcare professionals can make an optimum layout for their facilities. Whether open-concept, modular, or linear, a thoughtful and well-planned aesculapian authority base design can make a important difference in patient expiation and faculty productivity.

Medical Office Floor Plan Image 1 Medical Office Floor Plan Image 2 Medical Office Floor Plan Image 3

Related Damage:

  • reference room flooring plan
  • doctor authority floor program exemplar
  • health care clinic floor plan
  • urgent clinic floor programme blueprint
  • pressing caution base plan
  • square footage for aesculapian clinic