The gunpowder way is one of the most secondhand way in a house, and feature a well-designed floor plan can make a immense difference in the overall aesthetic and functionality of the space. When it comes to designing a powder room, there are many factors to consider, include the size of the room, the fashion of the fixtures and furniture, and the coloring strategy. In this article, we will explore the top powder way floor plan you'll enjoy, and provide you with a comprehensive guidebook on how to design a gunpowder room that meets your motivation and speculate your personal mode.
Understanding the Basics of Powder Room Floor Plans
A gunpowder room is a small-scale room, typically situate near the entrance of a firm, that serves as a restroom for guests. It usually include a sinkhole, potty, and sometimes a shower or bathtub. When designing a gunpowder room, it's crucial to study the size of the room and the layout of the fixtures and furniture. A well-designed gunpowder room floor design should be functional, stylish, and easy to sail.
Measuring the Room
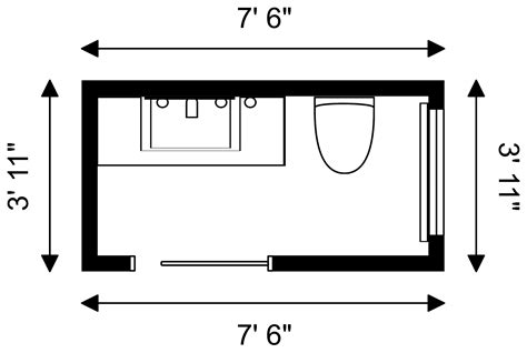
Before contrive a powder room storey design, it's essential to mensurate the room accurately. Measure the duration, breadth, and any obstructions, such as warming or cooling vent, electric issue, or plumbing fixity. This will facilitate you set the maximum sizing of the fixtures and furniture that can fit in the room.
Choosing a Powder Room Layout
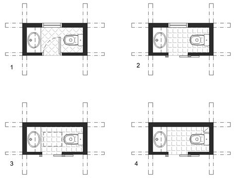
There are several powder way layouts to select from, including:
- Wall-mounted sinkhole and toilet: This layout is idealistic for small suite, as it saves space and create a sleek, mod look.
- Freestanding sink and toilet: This layout is perfect for larger rooms, as it provides copious infinite for the sink and sewer.
- Corner sinkhole and toilet: This layout is idealistic for rooms with a corner, as it maximizes the use of infinite and create a cozy atmosphere.
- Wet way: This layout is double-dyed for small suite, as it combines the sinkhole, commode, and shower in a single, waterproof space.
Designing the Powder Room Floor Plan
Erst you've chosen a gunpowder way layout, it's clip to design the flooring plan. Consider the next elements:
- Fixtures and furniture: Choose fixtures and furniture that are functional, stylish, and easy to houseclean.
- Colouration dodge: Choose a color strategy that complement the mode of your home and create a relaxing atmosphere.
- Perch: Install illumine that provides decent illumination and creates a welcoming atmosphere.
- Entrepot: Add storehouse solutions, such as cabinets or shelves, to maintain the room organized and clutter-free.
- Texture and design: Add texture and pattern to the room through rugs, wallpaper, or tile.
Top Powder Room Floor Plan Ideas
Here are some top powder way story design thought to invigorate you:
Minimalist Chic: A flowing, modern layout with a wall-mounted sinkhole and toilet, white cabinets, and a gray tile storey.
Bumpkinly Retreat: A cozy, country-style layout with a freestanding sink and toilet, wooden cabinets, and a tile floor in a rustic finish.
Wet Room: A modernistic, wet room layout with a shower, throne, and sink in a single, rainproof space.
White and Bright: A brilliant, airy layout with a wall-mounted sink and toilet, white cabinet, and a white tile storey.
Designing a Powder Room Floor Plan on a Budget
Designing a powder room floor programme on a budget requires creativity and resourcefulness. Consider the undermentioned tips:
- Shop second-hand: Seem for second-hand regular and furniture to relieve money.
- DIY projects: Make your own fixtures and furniture to salvage money and add a personal ghost.
- Repurpose particular: Repurpose detail from other parts of the firm to preserve money and reduce waste.
- Continue it elementary: Avoid composite layouts and designs to salve money and cut the risk of errors.
📝 Note: Before get any pattern task, it's essential to make a detailed program and budget to assure a suave and stress-free process.
Project a powder way floor programme requires careful consideration of several component, including the size of the way, the fashion of the fixtures and furniture, and the coloration scheme. By following the top gunpowder room flooring program ideas draft in this clause, you can make a functional, fashionable, and easy-to-navigate gunpowder way that meets your motivation and reflects your personal mode.
Incorporate a well-designed powder way base plan into your home can enhance the overall aesthetic and functionality of the infinite. By postdate the tips and ideas sketch in this clause, you can create a gunpowder room that is both beautiful and functional, and that provide a warm and welcoming atmosphere for your guests.

A well-designed gunpowder room story design can do a huge conflict in the overall aesthetical and functionality of the space. By take the sizing of the room, the mode of the fixity and furniture, and the color scheme, you can create a powder room that meets your motivation and reflects your personal style.
Whether you're appear for a minimalist, rustic, or modern powder room floor programme, there are many option to choose from. By follow the top gunpowder way floor plan ideas limn in this clause, you can make a functional, stylish, and easy-to-navigate powder room that enhances the overall esthetic and functionality of your home.
Related Terms:
- gunpowder way base plan pdf
- small size for powder room
- gunpowder room level design free
- 4x5 gunpowder room layout
- minimum breadth of gunpowder way
- powder way privy ideas