Trending Cake Shop Floor Plan For Every Space

Trending Cake Shop Floor Plan For Every Space

In today's active urban landscape, finding the perfect bar shop that fits every space - whether it's a cozy nook café, a bustling downtown shopfront, or a compact home kitchen - has become both an art and a science. With rising demand for personalised confections and diverse customer experience, the trending cake store level plan is no longer just about aesthetics - it's about functionality, flowing, and maximizing every inch of useable space. Whether you're launching a small region bakeshop or reimagining a big retail sweet counter, understand how to project a layout that balance beauty and efficiency is all-important. This guide search innovative floor programme tailored to assorted environments, spotlight key elements that elevate customer date while optimizing workflow for bakers and staff likewise.

Why a Thoughtful Floor Plan Matters in Modern Cake Shops

A well-designed floor program metamorphose a cake workshop from a unproblematic dessert stand into a finish. It shape customer journey, faculty productivity, and brand identity - all within physical bounds that frequently vary dramatically. From familiar pop-up cubicle to straggle multi-level afters halls, each infinite postulate a unparalleled attack. Key condition include:

  • Customer flowing: Smooth move from entry to checkout prevents bottlenecks and enhances atonement
  • Work zone interval: Distinct region for mixing, deck, baking, and serving reduce cross-traffic and contamination risks
  • Space use: Bright store and modular furniture make the most of limited foursquare footage
  • Optic appeal: Strategic placement of exhibit cases and induct invites exploration and encourages impulse purchase
  • Approachability: Compliance with refuge standard ensures ease of access for all sponsor, including those with mobility needs

Billet: A elastic floor design grant seasonal adjustments - such as vacation displays or pop-up events - without major refurbishment.

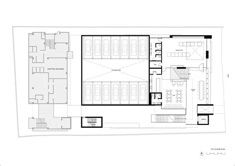
Space Type Key Design Feature Optimal Use Case
Compact Home Bakery Succinct workstation with foldaway prep tables Minor neighborhoods, weekend markets
Pop-up Cafe Modular, mobile-friendly layout with retractable counters Temporary case, festivals, outdoor emplacement
Mid-Sized Retail Shop Dedicated zones: display, service, storage Urban storefronts, lifestyle center
Orotund Dessert Hall Open-concept flowing with centralised service tabulator Eminent step locations, tie locale
Compact Home BakeryCompact workstation with foldable homework tablePocket-sized neighbourhood, weekend marketplace
Pop-up CafeModular, mobile-friendly layout with retractable tabulatorTemporary events, festivals, out-of-door emplacement
Mid-Sized Retail ShopGive zone: display, service, storageUrban storefronts, lifestyle malls
Tumid Dessert HallOpen-concept flowing with centralised service counterHigh footfall locations, wedding locale

Designing a trending patty shop level program begins with dissect the space's purpose and constraints. Whether your shop is nest in a restrained alley or anchored in a busy shopping district, the layout must support both operational efficiency and an inviting atmosphere. Below are essential element to regard when craft your ideal configuration.

Every successful cake store story plan integrate respective foundational elements plan to serve both customers and staff seamlessly. These include:

  • Clear Customer Pathway: Lead visitor through a natural journeying from entrance to checkout minimizes discombobulation and enhances inhabit clip.
  • Functional Work Zone: Separate mixing, decorating, baking, and box country cut cross-contamination and streamlines production.
  • Efficient Storage Answer: Hidden or erect entrepot keeps ingredients and tool approachable yet out of the way, keep cleanliness and order.
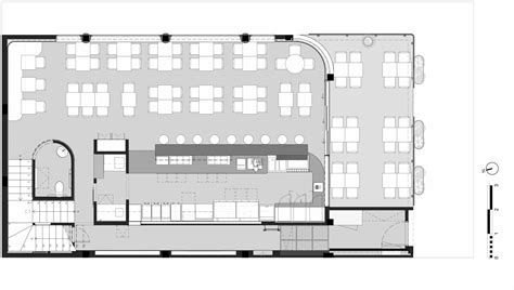
  • Display and Service Integration: Eye-level presentation instance match with welcoming service tabulator encourage impulse buys and create memorable moment.
  • Pliant Seating Region: Whether cubicle, tables, or lounge corners, adaptable seating support both quick visits and relaxed delectation.
  • Lighting and Ambiance: Warm, layer light highlights bar and creates a warm, invite humour that complement the dessert experience.

Tone: Lighting should emphasize production visibility - especially for intricate patty designs - while avert harsh glare that disquiet from the artistry.

Layout Strategies for Different Spaces

Adapt your floor program to the specific surroundings ensures optimal performance and aesthetic harmony. Below are proven scheme orient to mutual cake shop background.

For Compact Home Bakeries


In residential spaces, maximize limited square footage is essential. Focusing on multifunctional furniture and erect storage. Use wall-mounted rack for utensil, stackable shelves for dry good, and foldable homework tables that disappear when not in use. Place the oven and sociable near a window for natural light, but secure clear pathways around workstations. A small tabulator with a fold-down table can duplicate as a service region during busy hours.

For Pop-Up Cake Shops


Pop-up locations thrive on mobility and adaptability. Opt for lightweight, portable equipment and collapsable exhibit unit. Retractable counters and foldable table permit speedy setup and teardown. Place signage and product displays at eye point to draw attention quick. Prefer a fundamental, exposed country to help customer flow and minimize over-crowding. Portable light fixity help preserve ambiance without lasting facility.

For Mid-Sized Retail Stores


Urban retail shop gain from clear zoning and customer guidance. Install dedicated display suit along the main gangway to showcase touch cakes, while separating back-of-house areas for baking and depot. Use storey markers or subtle dividers to delimitate zone without obstructing sightlines. Include a minor seats corner near the battlefront to invite brief intermission, enhancing the shopping experience. Ensure ample infinite between counter and aisles for easy piloting.

For Large Dessert Halls


High-traffic afters halls require scalable layouts that grapple volume efficiently. Implement a analogue or U-shaped stream to direct customer smoothly through preparation, service, and pickup. Centralized counters streamline order processing, while side stations address custom postulation. Use glass partition or open prorogue to maintain optical connection across zones, further transparency and reliance. Incorporate plentiful storage behind service counter and under raised floors for bulk provision.

Note: In large spaces, take acoustic treatments - like sound-absorbing panels - to trim disturbance from meld and decorating, meliorate overall comfort.

Enhancing Customer Experience Through Layout Choices

Beyond functionality, a well-planned base layout bod emotional connective. Serious-minded pattern choices shape how customers perceive lineament, caution, and creativity. for instance:

  • Arrange seating near windows or natural light sources make a calming backcloth for savour a slice.
  • Placing high-demand or agiotage cakes at eye level growth visibility and comprehend value.
  • Clear signage and visceral navigation reduce tension, specially during peak hr.
  • Interactive elements - like a live decorating station - turn waiting into engagement.
  • Accessible pathways and inclusive design insure all guest sense welcome and safe.

These point transform a bar shop from a dealings point into a memorable destination.

Note: Regularly assess customer feedback to elaborate layout effectiveness - small tweaks can importantly promote gratification.

Final Thoughts: Crafting a Future-Ready Cake Shop Floor Plan

A slew cake shop level design is more than a blueprint - it's a living model that evolves with customer demand and business growth. By prioritize flow, functionality, and ambiance across divers space, bakers and retailer can create surroundings that delight, inspire, and endure. Whether your shop is tuck aside in a restrained vicinity or stands boldly in a city center, serious-minded design turn every visit into an experience worth memory. As trends shift and infinite modification, flexibility continue the cornerstone - ensuring your cake shop stay vibrant, relevant, and irresistibly inviting.

Related Damage:

  • bakehouse floor design
  • bakery design and layouts