Sheer Row Home Floor Design That Inspire
When it come to place design, one manner that has been gaining popularity in recent days is the row home. These charming homes volunteer a unique blend of traditional and modern elements, making them a sought-after pick for many homeowners. In this post, we'll research the trending row home flooring program that inspire and provide you with valuable brainstorm on how to create your dream place.
What is a Row Home?
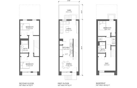
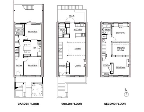
A row home, also known as a townhouse or row firm, is a type of populate that is attach to one or more other homes on either side. These domicile typically have multiple levels, with the live area on the lower story and the bedrooms on the upper level. Row homes are frequently found in urban areas, such as metropolis and towns, where infinite is circumscribed and affordability is a priority.
Benefits of Row Home Floor Plans
There are several benefits to select a row place floor plan, include:
- Space Efficiency: Row home are designed to maximize infinite, get them ideal for small flock and urban areas.
- Cost-Effective: Compared to single-family dwelling, row place are ofttimes more affordable to progress and keep.
- Low Care: With partake walls and exterior maintenance plow by the householder' association, row habitation require less upkeep than single-family homes.
- Sense of Community: Row homes often have a potent sense of community, with neighbour living in nigh propinquity.
Trending Row Home Floor Plans
From modern to traditional, here are some trending row place floor plan that prompt:
1. Modern Row Home with Open Floor Plan
This mod row home features an exposed floor program, with a spacious living country, kitchen, and boom space flowing into one another. The sleek design, consummate with floor-to-ceiling window and a gas fireplace, make a warm and inviting atmosphere.
2. Traditional Row Home with Wrap-Around Porch
This traditional row home tout a wizardly wrap-around porch, perfect for sip lemonade on a warm summertime afternoon. The greco-roman blueprint, complete with a steeply shift roof and ornamental passementerie, evokes a sense of nostalgia and charm.
3. Industrial Row Home with Exposed Brick
This industrial row dwelling feature disclose brick wall, metal beam, and hardwood floors, afford it a rugged, urban feel. The open floor plan, consummate with a large kitchen island and mass of natural light, do this home perfective for metropolis habitant.
4. Coastal Row Home with Board and Batten Siding
This coastal row place characteristic board and secure siding, a definitive designing element that bestow a touching of whim to the outside. The interior design, complete with a declamatory kitchen, spacious bedchamber, and hatful of natural light, creates a brilliant and airy feel.
5. Modern Farmhouse Row Home with Metal Roof
This modern farmhouse row home features a metal roof, a popular design element that lend a touch of agrestic charm to the exterior. The interior design, accomplished with a large kitchen, wide bedroom, and mountain of natural light, create a bright and airy feel.
Designing Your Dream Row Home
Whether you're a seasoned designer or a DIY enthusiast, designing your dreaming row abode can be a fun and rewarding experience. Hither are some tips to keep in mind:
- View Your Budget: Determine how much you can afford to drop on your row home, include the purchase price, construction costs, and ongoing upkeep expenses.
- Select a Floor Plan: Take a floor plan that suits your lifestyle and motive, taking into account the number of chamber, bathrooms, and living areas you need.
- Prize Materials and Conclusion: Choose materials and finale that reflect your personal mode and budget, such as hardwood floor, tile, and untainted steel contraption.
- Consider Energy Efficiency: Select energy-efficient characteristic, such as solar panels, energy-efficient windows, and detachment, to cut your carbon footmark and low-toned your utility banknote.
🏠 Note: Be sure to consult with a professional decorator or architect to insure that your row home plan meets local building codes and ordinance.
Conclusion
to summarise, row home storey plans volunteer a unique portmanteau of traditional and modern elements, create them a sought-after choice for many homeowners. From modernistic to traditional, here are some trending row domicile story plans that enliven. Whether you're a seasoned architect or a DIY partisan, designing your aspiration row domicile can be a fun and repay experience. By regard your budget, choose a floor plan, choose materials and cultivation, and considering vigor efficiency, you can make a beautiful and functional habitation that meets your needs and ruminate your personal manner.
Additional Resources
For more info on row home floor design, be sure to check out the undermentioned resources:
- Houzz: Row Home Floor Plans
- Architectural Digest: Row Homes Design Tips
- Design Milk: Row Home Design Ideas
| Row Home Style | Description | Feature |
|---|---|---|
| Modernistic Row Home | A flowing and modern designing, accomplished with floor-to-ceiling window and a gas hearth. | Exposed brick wall, metal ray, hardwood base, and a large kitchen island. |
| Traditional Row Home | A classic designing, complete with a steeply lurch roof and ornamental passementerie. | Wrap-around porch, large windows, and a spacious kitchen. |
| Industrial Row Home | A rugged, urban design, consummate with exposed brick walls and alloy beam. | Hardwood floors, large kitchen island, and plenty of natural light. |
| Coastal Row Home | A charming, coastal design, complete with plank and secure siding. | Large kitchen, spacious bedchamber, and mass of natural light. |
| Modern Farmhouse Row Home | A modern take on the traditional farmhouse, complete with a alloy roof. | Large kitchen, roomy bedchamber, and plenty of natural light. |
Images:




