The U Shaped House Floor Design has been a basic in modernistic architecture for decades, offering a unique blend of functionality and style. Whether you're make a new home or renovating an existing one, a U-shaped level plan can provide a versatile and efficient living space. In this situation, we'll delve into the world of U-shaped firm floor plans, explore their welfare, design considerations, and tips for create the most of this popular layout.
What is a U Shaped House Floor Plan?
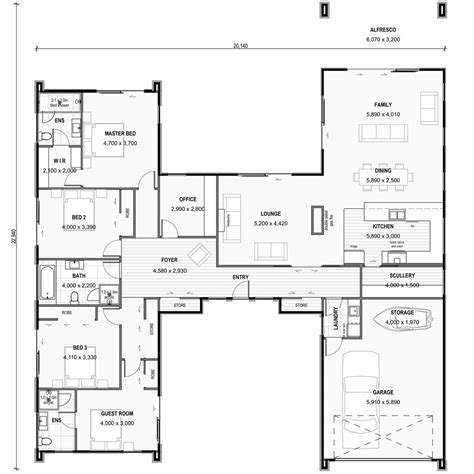
A U-shaped firm floor program features a cardinal hallway or populate area, with two wing go outwards in a curved or rectangular chassis. This layout supply a sense of openness and stream, while also creating freestanding areas for different activities and part. The U-shaped design is ofttimes associated with mod and present-day architecture, but it can also be conform to traditional and eclectic styles.
Benefits of a U Shaped House Floor Plan
- Space Efficiency: The U-shaped design make effective use of space, creating a sentiency of width and depth without give livability.
- Flexibility: The central hall or dwell area can be customized to fit different need and orientation, from a formal life way to a cosy reading corner.
- Separation of Office: The two wing of the U-shaped plan provide freestanding region for different activities, such as a kitchen, din area, and bedrooms.
- Natural Light: The curved or orthogonal build of the U-shaped pattern can grant for an abundance of natural light, get the infinite feel brighter and more welcoming.
Design Considerations for a U Shaped House Floor Plan
When project a U-shaped house floor plan, there are several factors to study:
- Functionality: Determine the primary functions of each country in the U-shaped design, such as a kitchen, boom area, and bedrooms.
- Flow: Consider the stream of traffic through the space, ensuring that the cardinal hall or living country is well approachable and functional.
- Scale: Take a scale that lawsuit the situation and the needs of the occupants, from compact and cozy to expansive and luxuriant.
- Way: Choose a style that complement the U-shaped design, from mod and minimalist to traditional and ornate.
Types of U Shaped House Floor Plans
There are various variations of the U-shaped house floor plan, each with its own unparalleled characteristic and welfare:
- Open-Plan U-Shaped: A open-plan U-shaped designing features a bombastic, open space with minimum division between the different areas.
- Split-Level U-Shaped: A split-level U-shaped designing lineament different point or program, creating a sentiency of depth and visual interest.
- Curve U-Shaped: A curving U-shaped designing sport a curved or rounded shape, make a sense of fluidity and motility.
U Shaped House Floor Plan Tips and Tricks
To create the most of a U-shaped house story design, consider the following tips and trick:
- Use the cardinal hallway or populate area to make a sense of connection between the different areas.
- Choose furniture and fixtures that complement the U-shaped design and make a sentiency of stream.
- Consider integrate natural materials and texture to add warmth and depth to the space.
- Use perch to create a sensation of ambiance and highlight the unparalleled feature of the U-shaped pattern.
U Shaped House Floor Plan Ideas
Hither are some inspiring U-shaped house floor plan idea to study:
Modern U-Shaped: A modernistic U-shaped blueprint features clean line, minimal ornamentation, and an emphasis on functionality.
Rustic U-Shaped: A rustic U-shaped pattern sport natural material, such as forest and stone, and a cozy, tempt atmosphere.
Industrial U-Shaped: An industrial U-shaped pattern feature exposed ductwork, alloy beams, and a minimalist esthetic.
Eco-Friendly U-Shaped: An eco-friendly U-shaped design have sustainable fabric, energy-efficient systems, and a focus on environmental sustainability.
📸 Line: Be sure to consider local edifice codification and ordinance when designing and building a U-shaped firm story plan.
Final Thoughts
The U-shaped firm floor program offers a unequaled blend of functionality, style, and tractability, make it a popular selection for modern homebuyers. By considering the welfare, design considerations, and backsheesh and tricks outlined in this station, you can make a U-shaped floor design that suit your needs and orientation. Remember to stay true to your designing sight and don't be afraid to experiment and try new things. Felicitous edifice!
Recommended Reading:
- U-Shaped House Floor Plans: A Comprehensive Guide
- Designing a U-Shaped House Floor Design: Hint and Trick
- The Benefits of a U-Shaped House Floor Plan
Ikon Credit:

Related Price:
- u mould residential edifice
- u forge homes with courtyards
- u shaped pocket-sized house plan
- u mould houses with courtyard
- u forge modern house program
- u shaped house layout