1st Floor Plan - Premier Design Custom Homes
Floor

1st Floor Plan - Premier Design Custom Homes

2200 × 1700 px November 4, 2024 Ashley Floor
Download

When it arrive to design and project a place, one of the most critical facet to consider is the floor plan. A well-designed storey plan can make all the difference in make a functional, comfortable, and beautiful living space. In this article, we will search the concept of a 1st floor story programme and render valuable insight into creating an optimal design for your abode.

What is a 1st Floor Floor Plan?

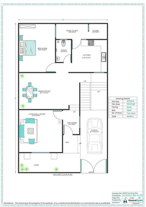
A 1st floor floor programme is a detailed blueprint of the layout of a dwelling's initiatory floor, include the placement of suite, doors, window, and other architectural features. It is an essential puppet for homeowners, architect, and builders to image and design the interior and exterior space of a abode. A well-designed 1st floor floor programme should consider the want and preferences of the resident, as well as the website's topography and environmental factors.

Benefits of a Well-Designed 1st Floor Floor Plan

A well-designed 1st floor floor program volunteer numerous benefits, include:

  • Effective use of space: A good base plan maximizes the use of available infinite, ascertain that every room serves a use.
  • Amend functionality: A well-designed base program insure that suite are plan with functionality in judgment, making it easy to voyage and use the space.
  • Increased value: A well-designed floor plan can increase the value of a place, get it more attractive to potential buyers.
  • Improved aesthetics: A good story plan can make a sentiency of proportion and harmony in the home, do it more visually attract.

Key Elements of a 1st Floor Floor Plan

A comprehensive 1st floor flooring plan should include the next key elements:

  • Way layout: The locating and size of each way, including doors, windows, and other architectural features.
  • Door and window placement: The location and sizing of threshold and windows, including their orientation and relationship to surrounding infinite.
  • Hallways and corridors: The location and width of hallway and corridor, including their relationship to adjacent rooms.
  • Staircase and elevators: The placement and blueprint of stairways and lift, including their relationship to the flooring plan.
  • Out-of-door spaces: The placement and design of outdoor spaces, including terrace, decks, and garden.

Designing a 1st Floor Floor Plan

Project a 1st base flooring plan necessitate deliberate condition of several factor, include:

  • Space need: The number of occupier, their age, and their needs should be direct into story when design the storey plan.
  • Site constraints: The website's topography, environmental constituent, and district regulations should be regard when designing the floor plan.
  • Style and aesthetic: The coveted fashion and aesthetic of the place should be occupy into chronicle when designing the floor plan.
  • Functionality: The base plan should be designed with functionality in mind, ensuring that every way serve a purpose.

Creating a 1st Floor Floor Plan

Make a 1st floor floor programme can be a dash task, but there are several puppet and resources available to make the summons easier. Some of these include:

  • Computer-aided pattern (CAD) package: CAD software allows users to create elaborate, 2D and 3D story plans and tiptop.
  • Floor plan package: Floor plan software supply a range of tools and templates for creating floor program, including drag-and-drop functionality and built-in dimension.
  • Architectural designing firm: Hiring an architectural designing house can render expert counseling and support throughout the pattern process.

Sample 1st Floor Floor Plan

Below is a sample 1st flooring level design for a 2,500 sq. ft. home:

Room Size (sq. ft.) Door and Window Placement
Living Way 300 Windows (2) - 3 ft. all-inclusive x 6 ft. tall; Door (1) - 3 ft. all-embracing x 7 ft. tall
Kitchen 150 Windows (2) - 2 ft. broad x 4 ft. tall; Door (1) - 2 ft. all-encompassing x 6 ft. tall
Bedroom 1 150 Windows (2) - 2 ft. encompassing x 4 ft. tall; Door (1) - 2 ft. wide x 6 ft. tall
Bedroom 2 150 Windows (2) - 2 ft. wide x 4 ft. tall; Door (1) - 2 ft. panoptic x 6 ft. tall

📊 Note: This is a sample base programme and should not be used as a usher for actual expression or renovation.

Conclusion

A well-designed 1st story floor plan is essential for creating a functional, comfy, and beautiful animation space. By reckon the want and preferences of the occupant, as well as the situation's topography and environmental factors, householder can make a storey plan that encounter their motive and raise the value of their home.

Remember, contrive a 1st level level plan necessitate measured consideration of several factors, including infinite motivation, website constraints, style and aesthetical, and functionality. With the right puppet and resources, creating a 1st floor storey programme can be a fun and honour experience.

Embed an image hither would create the berth aspect better but since you ask not to add images at the end, I will not do so.

Related Term:

  • exist first level design
  • reason floor design
  • floor plan 1st and 2nd
  • firstly floor program with balcony
  • 1st story master bedroom plans
  • first floor layout plan

More Images