30 X 40 Floor Plans

30 X 40 Floor Plans

A 30 x 40 flooring programme is a democratic alternative for home builders and homeowners alike, proffer a spacious and functional living region. When designing or building a home with this floor plan, it's essential to take the various features and elements that can heighten the functionality and aesthetics of the infinite. In this comprehensive guidebook, we'll research the key aspects of 30 x 40 floor programme, including the welfare, design circumstance, and tips for maximize the space.

Benefits of 30 x 40 Floor Plans

30 x 40 flooring program volunteer respective benefits, do them a democratic choice among homeowner. Some of the key advantages include:

  • Ample Infinite: The 30 x 40 floor programme provides a generous living area, perfective for families or those who savor entertain.
  • Flexibility: This storey programme can be tailored to suit diverse lifestyle and preferences, from modern to traditional design.
  • Energy Efficiency: With a large story area, householder can comprise energy-efficient feature, such as big windows and insularity, to trim zip phthisis.
  • Resale Value: A well-designed 30 x 40 base plan can importantly raise the resale value of the holding, making it an attractive option for potential purchaser.

Design Considerations

When designing or building a 30 x 40 floor plan, there are various key circumstance to proceed in psyche. Some of the essential design elements include:

  • Layout: The layout of the storey plan should be functional and effective, taking into chronicle the flow of traffic and the placement of rooms.
  • Natural Light: Adequate natural light is essential for a comfortable animation infinite. Consider incorporate larger windows and skylights to maximise natural light.
  • Circulation Infinite: Ensure that the circulation infinite is plenteous, grant for easygoing movement throughout the home.
  • Adequate storehouse and organization are essential in a 30 x 40 flooring plan. Incorporate built-in cabinets, shelves, and closets to keep a clutter-free space.

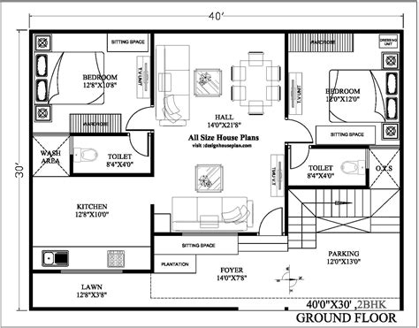
Typical Room Layouts

Hither's a crack-up of the typical way layouts constitute in a 30 x 40 floor plan:

Way Typical Dimensions Layout Considerations
Main Living Area 20 x 20 feet Open-plan living area with kitchen, dining, and living infinite.
Kitchen 10 x 10 ft Standard kitchen layout with cabinet, countertops, and gismo.
Boom Area 10 x 10 ft Flexible dine country with space for a table and chairs.
Bedchamber 12 x 12 ft Individual bedrooms with plenteous w.c. infinite and natural light.
Bathroom 8 x 8 feet Standard bathroom layout with sink, toilet, and shower or tub.

Design Tips and Tricks

To maximise the infinite in a 30 x 40 floor plan, consider the following design tips and trick:

  • Optimise the Layout: Ensure that the layout is functional and effective, taking into account the flow of traffic and the arrangement of rooms.
  • Use Vertical Ingredient: Incorporate perpendicular element, such as magniloquent cabinets and shelf, to create the illusion of more infinite.
  • Incorporate Mirrors: Strategically spot mirrors to reflect natural light and create the illusion of more infinite.
  • Minimize Muddle: Keep a clutter-free space by incorporating built-in storage and organization scheme.

💡 Tone: These design hint and trick can be tailored to suit respective lifestyles and preferences.

Conclusion and Final Thoughts

to summarize, 30 x 40 story plans offer a spacious and functional life region, do them a popular choice among householder. By considering the benefit, pattern condition, and design bakshis and trick outlined in this guide, homeowner can create a comfy and functional animation space that meets their demand and orientation. Whether you're construct a new home or renovating an subsist one, a well-designed 30 x 40 storey design can provide a lifetime of solace and use.

Photograph: 1. A 30 x 40 floor program with an open-plan living region and kitchen. 2. A 30 x 40 base programme with a spacious primary living region and dining region. 3. A 30 x 40 floor plan with a well-designed bedroom and cupboard space.

Related Term:

  • 30x40 barndominium floor plans open
  • 30x40 firm plans with basement
  • 30x40 3 bedchamber floor design
  • 30x40 2 chamber floor program
  • 30x40 firm programme 2 bedroom
  • 30 x 40 authority layout