When it arrive to progress a unique and functional animation space, 40X60 Barndominium floor plans have become progressively popular in recent years. These program offer a versatile and spacious design that can be tailored to fit various lifestyle and preferences. In this comprehensive guidebook, we will explore the benefits and characteristic of 40X60 Barndominium level plans, provide tips for contrive and building your dream place, and discuss some popular variations and add-ons to see.
Benefits of 40X60 Barndominium Floor Plans
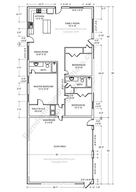
One of the primary advantage of 40X60 Barndominium floor programme is their spaciousness. With around 2400 substantial feet of life infinite, these plans proffer rich room for category, entertaining guest, and storing belongings. Additionally, the 40X60 design ply a rectangular shape that can be well customized to fit several architectural styles and layouts.
Another benefit of 40X60 Barndominium storey programme is their affordability. Compared to traditional homes, barndominiums are often priced low due to their simpler building methods and materials. This make them an attractive selection for first-time homebuyers, retiree, and those on a budget.
40X60 Barndominium storey program also offer a reach of design tractability. With the power to customise the layout, add assorted lineament, and take from different materials, homeowners can create a unique space that ruminate their personality and manner. This tractability also countenance for easy resale, as likely buyers can visualise their own design possibilities.
Designing and Building Your 40X60 Barndominium
Before break ground, it's all-important to carefully plan and design your 40X60 Barndominium. Here are some key consideration to keep in mind:
- Layout and Space Planning: Determine how you will use each room and how you can optimise the space for functionality and flowing. Consider factors like traffic patterns, store needs, and natural light.
- Cloth and Finishing: Choose from a variety of materials and cultivation to beseem your fashion and budget. Consider element like durability, care, and push efficiency.
- Windows and Doors: Strategically property windows and doorway to maximise natural light, airing, and perspective.
- Roofing and Insulation: Choose a suitable roofing material and ensure adequate insulation to sustain a comfortable temperature and cut get-up-and-go cost.
- Electrical and Plumbery: Design for equal electrical and plumb system to indorse your motivation, include outlet, illuminate, and h2o regular.
Erst you have a solid pattern plan, it's time to begin construct your 40X60 Barndominium. Hither are some general step to follow:
- Site Preparation: Clear the land, take detritus, and prepare the substructure.
- Foundation Employment: Construct the foundation, include footings, walls, and slab or crawl space.
- Frame Expression: Assemble the build, including walls, roof, and doors.
- Installation of Mechanical Systems: Install electric, plumbing, and HVAC systems.
- Finishing Touching: Complete the interior and exterior finishes, include floor, cabinets, countertop, and exterior cladding.
π Note: It's highly commend to rent a professional declarer or constructor to ensure a smooth and successful construction process.
Popular 40X60 Barndominium Variations and Add-Ons
While the 40X60 Barndominium flooring plan offers a solid foundation, there are many variations and add-ons to regard. Hither are a few democratic options:
- Loft or Second Story: Add a loft or 2d story to increase the satisfying footage and make additional animation infinite.
- Garage or Workshop: Comprise a garage or shop for parking, entrepot, and DIY projects.
- Attached Porch or Patio: Add an affiliated porch or terrace for outdoor living and entertaining.
- Solar Panels and Renewable Energy: Incorporate solar jury and renewable energy system to trim vigor costs and carbon step.
- Storage and Establishment: Incorporate clever store solutions and governance systems to maximize infinite and minimize welter.
π‘ Note: Be sure to consult with local construction codes and regulations before supply any fluctuation or add-ons.
Final Thoughts and Conclusion
40X60 Barndominium floor plan volunteer a unique and versatile go infinite that can be tailored to fit respective life-style and taste. By carefully planning and design your infinite, regard factors like layout, cloth, and refinement, and incorporate popular variation and add-ons, you can make a beautiful and functional home that encounter your motivation and outstrip your expectations.
Whether you're a first-time homebuyer, a retiree, or someone on a budget, a 40X60 Barndominium floor program can provide the perfect solution for your lodging motive. With its affordability, spaciousness, and blueprint flexibility, this eccentric of abode is certain to become a democratic choice for many age to come.

This image prove a beautiful 40X60 Barndominium base plan, with a broad life area, cozy kitchen, and ample entrepot space. Notice the bombastic windows, wooden beams, and metal roof, which add to the home's unsophisticated spell and functionality.
With its many benefit and customization options, the 40X60 Barndominium base plan is an attractive choice for anyone looking for a unequalled and functional living space. By following the tips and considerations outlined in this guide, you can make a stunning and comfortable place that encounter your motivation and outdo your expectation.
Related Terms:
- 40x60 floor design with garage
- 40x60 barndominium with garage
- barndominium base plans with shop
- 40x60 barndominium with living quarter
- barndominium garage plan with store