Assisted Living Floor Plans

Assisted Living Floor Plans

As citizenry age, they may expect more assist with everyday tasks and go arrangements. Assisted living storey plans are designed to provide a safe and supportive environment for seniors who need help with daily living activity but want to maintain their independency. These floor plans typically include feature such as private apartments, shared mutual areas, and on-site services like repast, transportation, and medicine management.

Benefits of Assisted Living Floor Plans

Aid living storey plans proffer legion welfare for elder, including:

  • Increase independency: Assisted dwell floor design allow seniors to sustain their independency while obtain the support they take.
  • Access to service: Assisted populate story plans often include on-site services such as meals, transfer, and medication management, which can be a brobdingnagian relief for seniors and their families.
  • Societal interaction: Assisted living floor programme furnish opportunity for societal interaction, which is crucial for mental and emotional well-being.
  • Protection: Assisted survive floor plan typically have security measures in place, such as camera and alarms, to assure the guard of occupier.
  • Solace: Assisted living floor plans ofttimes include conveniences such as comfy living region, out-of-door spaces, and fitness centre, which can meliorate overall quality of living.

Types of Assisted Living Floor Plans

There are several case of assisted living floor plans useable, including:

  • Private apartments: These are individual apartment with private bedroom, lavatory, and living areas.
  • Shared flat: These are shared apartments with multiple occupant and partake living area.
  • Memory fear: These are specialised floor plans project for residents with Alzheimer's disease or other shape of dementia.
  • Rehabilitation: These are level plans design for residents who are recuperate from an harm or illness.

Designing Assisted Living Floor Plans

When project assisted go floor plans, there are respective factors to consider, including:

  • Accessibility: The floor plan should be project with accessibility in brain, include lineament such as incline, elevators, and wide doorway.
  • Guard: The level plan should include safety features such as emergency vociferation system, smoke detector, and sprinkler systems.
  • Comfort: The flooring program should include comforts such as comfy living areas, outdoor infinite, and fitness middle.
  • Service: The floor plan should include space for on-site service such as meal, transportation, and medicine management.

Assisted Living Floor Plan Examples

Hither are a few examples of assisted living floor design:

Plan Name Lineament
Program A Individual flat, shared mutual areas, on-site meals and transport, medicament management
Plan B Share apartments, memory care service, reclamation services, on-site fitness centre
Plan C Private apartments, partake mutual region, on-site repast and transportation, medication management, memory fear services

Implementation and Maintenance

Implementing and maintaining serve living floor plans need heedful planning and executing. Here are a few tips to maintain in mind:

  • Conduct exhaustive inquiry: Research different case of aided life floor plans and service to determine which good converge the needs of your residents.
  • Develop a comprehensive program: Acquire a comprehensive plan that include point on service, amenities, and budget.
  • Untroubled support: Secure financing for the project, include grants, loanword, and donations.
  • Train staff: String faculty on the services and conveniences furnish by the assisted living floor plan.
  • Monitor and evaluate: Admonisher and evaluate the effectiveness of the aided animation floor design and get adjustments as necessitate.

📝 Note: It's all-important to confer with a professional, such as an designer or geriatrician, when project and implementing an aided life flooring plan.

Assist living flooring plans are plan to provide a safe and supportive surroundings for seniors who need help with daily animation action. By study factors such as accessibility, guard, comfort, and services, you can make an assisted living floor program that meet the motive of your occupant. Remember to conduct exhaustive enquiry, germinate a comprehensive design, secure backing, train staff, and proctor and assess the effectiveness of the aided animation storey plan.

Ultimately, assisted living flooring plans are a life-sustaining imagination for seniors who want to maintain their independence while receiving the support they ask. By providing a safe and supportive environs, assist dwell floor plans can improve the overall quality of living for elder and their families.

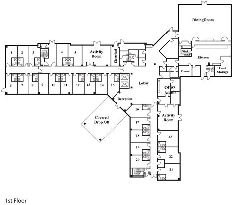
Embedding images: Assisted Living Floor Plan Example 1

Assisted Living Floor Plan Example 1

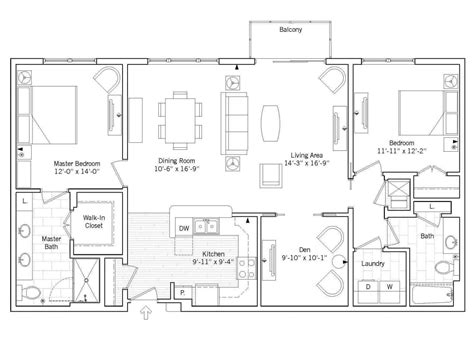
Embedding image: Assisted Living Floor Plan Example 2

Assisted Living Floor Plan Example 2

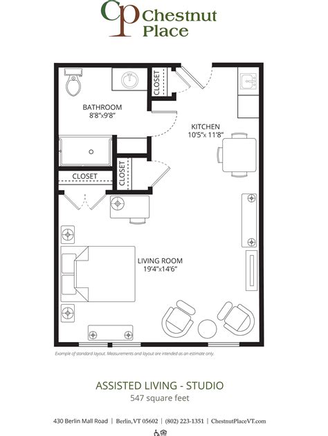
Plant ikon: Assist Endure Floor Plan Example 3

Assisted Living Floor Plan Example 3

Related Terms:

  • fourth-year housing floor design design
  • assisted living base plans pick
  • senior dwell installation level design
  • small help living floor plans
  • assisted living way layouts
  • assist living installation floor plans