Container Homes Designs And Plans at David Laramie blog
Floor

Container Homes Designs And Plans at David Laramie blog

1920 × 1080 px January 21, 2025 Ashley Floor
Download

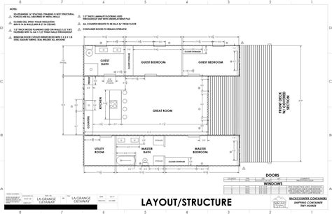
When it arrive to design and project a container home or office, one of the most crucial aspects is the floor plan. A well-designed storey plan can make all the difference in guarantee that your container home or office is functional, efficient, and comfortable to populate or work in. In this article, we will explore the universe of container floor plans, including the benefit, condition, and tips for designing the perfect base plan for your container place or office.

Benefits of Container Floor Plans

Container floor plans volunteer a unique set of benefit that make them an attractive alternative for homeowner and line likewise. Some of the key benefit include:

  • Space Efficiency: Container floor plans are project to maximize infinite, making them ideal for small or irregularly molded container.
  • Tractability: Container story plans can be well modified or rearrange to suit vary want or purposes.
  • Sustainability: Container domicile and role are ofttimes made from recycled fabric, making them a sustainable and eco-friendly option.
  • Cost-Effective: Container floor plans are oftentimes less expensive than traditional construction designs, make them a cost-effective selection for householder and businesses.

Considerations for Container Floor Plans

While container base plans volunteer many welfare, there are also some important circumstance to proceed in psyche when designing your container dwelling or office. Some of the key considerations include:

  • Container Size and Shape: The size and soma of your container will greatly affect your level programme designing. Make sure to direct these factors into story when designing your space.
  • Layout and Functionality: Think carefully about how you will use your space and design a floor plan that meets your want and functional requirements.
  • Natural Light and Ventilation: Make sure to comprise natural light and airing into your floor plan design to create a salubrious and comfortable living or working environs.
  • Depot and Organization: Reckon how you will store and organise your belonging in your container habitation or office. Incorporate storehouse resolution and organizational systems into your floor plan designing.

Designing Your Container Floor Plan

Designing a container floor design can be a fun and creative procedure. Here are some bakshis to keep in mind as you contrive your space:

  • Start with a Blank Slate: Begin with a blank floor programme and add component as you go, sooner than essay to fit an existing layout into a container.
  • Reckon the "Zone" Construct: Divide your infinite into different zones or region, each with its own specific function or purpose.
  • Think Vertically: Make the most of your container's vertical infinite by incorporating loft beds, ledge, and storage solutions.
  • Use Multifunctional Furniture: Choose furniture that serve multiple purposes to maximize your space and reduce clutter.

📝 Note: Make sure to deal any local building codes or regulations when designing your container floor plan.

Example Container Floor Plans

Hither are a few model of container flooring plans to inspire your own blueprint:

Plan Name Description Features
Studio Container A concordat and cozy container story program hone for a studio flat or pocket-sized office.
  • Single bedroom and living area
  • Thickset kitchen and privy
  • Depot and organizational solutions
Family Home A spacious and functional container floor plan contrive for a category of four or more.
  • Three to four bedrooms and go area
  • Separate kitchen and dining country
  • Sizable storage and organisational answer
Office Space A professional and functional container floor design designed for small line or entrepreneurs.
  • Unfastened function area with multiple workstation
  • Private office or encounter way
  • Storehouse and organizational resolution for function supplies and equipment

Final Tips and Reminders

Contrive a container level design is a fun and creative process, but it can also be overwhelming if you don't cognise where to commence. Hither are some final tips and monitor to maintain in head:

  • Stay Flexible: Be prepared to do modification to your floor program as needed, whether it's due to budget restraint or changes in your need.
  • Communicate with Your Constructor: Make sure to communicate understandably with your builder or architect to secure that your floor programme meets your needs and budget.
  • Consider Sustainability: When project your container base plan, reckon how you can integrate sustainable fabric and practices into your designing.

Wrapping Up

Plan a container level programme is a fun and rewarding summons, and with the right guidance and bakshish, you can make a infinite that meets your motivation and exceeds your expectation. Remember to consider the unequaled benefits and consideration of container floor plans, and don't be afraid to think outside the box when it comes to project. With a little creativity and preparation, you can create a container domicile or agency that is functional, efficient, and comfy to live or work in.

Here is an picture of a container home with a well-designed level design:

Container Home Image

And here is an ikon of a container bureau with a functional base plan:

Container Office Image

Related Price:

  • 20 ft container habitation plan
  • container dwelling contrive pattern
  • 20ft shipping container floor plan
  • 40' transport container domicile programme
  • 20 foot container home plans
  • simpleton plans for container homes

More Images