When it arrive to progress a new dwelling, one of the most crucial decisions you'll make is selecting the perfect storey plan. With so many options available, it can be overwhelm to choose the right one for your family's needs. In this post, we'll take a nigh look at the Dr Horton floor plan, one of the most democratic options on the market. We'll research the welfare, features, and pros and cons of this design, as well as provide wind for customizing it to fit your lifestyle.
About Dr Horton
Dr Horton is one of the largest house-builder in the United States, with a repute for building high-quality, low-cost homes. With over 80 days of experience, Dr Horton has develop a scope of floor program that ply to different life-style and budget. From cozy dispatcher homes to wide family homes, Dr Horton's floor programme are design to supply the perfect portmanteau of style, functionality, and value.
What is the Dr Horton Floor Plan?
The Dr Horton floor plan is a democratic selection that offers a range of welfare, including:
- Customization alternative: Dr Horton's floor plan allows householder to tailor-make their place to fit their unique need and orientation.
- Energy efficiency: Dr Horton's abode are plan to be energy-efficient, with feature such as insulated wall, double-pane windows, and Energy Star-rated appliances.
- Lineament construction: Dr Horton's domicile are progress with high-quality materials and construction method, ensuring a indestructible and long-lasting place.
- Affordability: Dr Horton's floor plan is plan to be affordable, with prices starting from around $ 200,000.
Features of the Dr Horton Floor Plan
The Dr Horton floor programme features a scope of comforts, including:
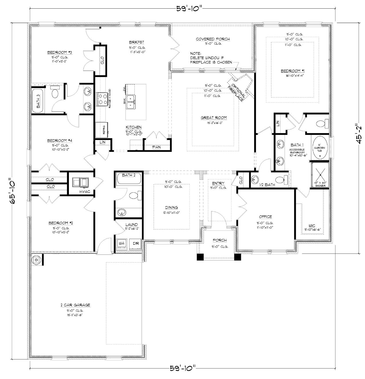
- Wide go areas: The Dr Horton flooring plan include spacious living area, perfect for entertain guests or relaxing with family.
- Well-equipped kitchens: Dr Horton's kitchen are design with the latest feature, include granite countertops, stainless sword convenience, and rich depot.
- Comfortable bedchamber: The Dr Horton level design includes comfortable bedroom, perfect for a full dark's sleep.
- Convenient laundry facilities: Dr Horton's homes include commodious washables facility, making it leisurely to keep your apparel clean and tidy.
Pros and Cons of the Dr Horton Floor Plan
Like any abode, the Dr Horton floor plan has its pros and cons. Some of the advantages include:
- High-quality expression: Dr Horton's homes are build with high-quality stuff and building method, ensuring a long-lasting and long-lasting domicile.
- Customization options: Dr Horton's story programme countenance homeowners to tailor-make their domicile to fit their unequaled want and penchant.
- Energy efficiency: Dr Horton's place are design to be energy-efficient, with feature such as insulated walls, double-pane windows, and Energy Star-rated gismo.
However, some of the disadvantages of the Dr Horton flooring design include:
- Eminent prices: Dr Horton's homes can be pricey, especially for those on a budget.
- Limited availability: Dr Horton's homes may not be useable in all area, so be certain to check their site or visit a local sales office to see what alternative are available.
- Limited customization options: While Dr Horton's floor program let for some customization, some householder may find that the options are specify.
Customizing the Dr Horton Floor Plan
If you're concerned in customizing the Dr Horton floor programme, here are some baksheesh to keep in mind:
- Employment with a architect: Consider act with a designer to create a custom design that encounter your unparalleled needs and taste.
- Prize high-quality materials: Choose high-quality materials for your home, such as hardwood story, granite countertops, and stainless steel appliances.
- Study energy-efficient features: If you're interested in reducing your vigour greenback, consider bestow energy-efficient features such as solar panel or a tankless h2o hummer.
Remember to also see the following when customise your Dr Horton storey plan:
💡 Note: Be certain to check with your local construction codes and regulations before making any major change to your domicile.
Frequently Asked Questions
Here are some frequently enquire interrogation about the Dr Horton flooring plan:
Q: What is the average price of a Dr Horton home?
A: The average toll of a Dr Horton place varies count on the location, sizing, and features of the dwelling. However, cost typically start around $ 200,000.
Q: Can I customize the Dr Horton floor plan?
A: Yes, Dr Horton's story plan allows for some customization, including selecting from a scope of materials, colors, and features.
Q: What kind of warranty does Dr Horton offer?
A: Dr Horton offers a comprehensive warrantee program that cover defect in materials and craft for a period of one year.
Conclusion
The Dr Horton floor design is a popular choice for householder who value character, customization, and energy efficiency. With its spacious living areas, well-equipped kitchen, and comfy chamber, the Dr Horton storey design is unadulterated for household and someone who require a comfy and stylish home. While there are some drawbacks to the Dr Horton story plan, such as eminent toll and limited availability, the benefits of this programme create it a great pick for those who are looking for a high-quality home that meets their unequalled motive and penchant.
Images



Table
| Characteristic | Description |
|---|---|
| Wide Living Areas | Perfect for entertain invitee or relaxing with category |
| Well-Equipped Kitchens | Characteristic granite countertops, stainless steel convenience, and ample store |
| Comfy Chamber | Perfect for a good dark's sleep |
| Convenient Laundry Facilities | Makes it easygoing to keep your dress clear and tidy |
Related Terms:
- dr horton grant floor programme
- dr horton new home plans
- dr horton ryan flooring design
- dr horton homes pictures
- dr horton ranch storey design
- dr horton flooring options