Barn House Plans
Floor

Barn House Plans

2150 × 2150 px October 21, 2024 Ashley Floor
Download

When it arrive to design a barn, one of the most crucial aspects is creating an effective floor program. A well-designed floor plan can help maximise space, improve functionality, and enhance the overall aesthetic of the barn. In this article, we will search the key elements to view when creating floor plans for a barn, include infinite planning, functionality, and architectural fashion.

Understanding Barn Floor Plan Basics

A barn floor programme typically includes a combination of life space, storage area, and animal inclosure. The key elements to view when plan a barn floor plan include:

  • Infinite preparation: shape the layout of the barn and how the respective infinite will be used.
  • Functionality: take the want of the users and the fauna, as well as the role of the barn.
  • Architectural style: choosing a style that meet with the surround environment and the desired esthetic.

Space Planning for Barn Floor Plans

Space provision is a critical aspect of contrive a barn floor plan. It involve ascertain the layout of the barn and how the several infinite will be habituate. Some key circumstance for space provision include:

  • Set the size and shape of the barn.
  • Choose a floor programme layout that maximizes space and functionality.
  • Considering the needs of the exploiter and the fauna.

Functionality in Barn Floor Plans

Functionality is another critical aspect of designing a barn floor plan. It involves considering the needs of the user and the beast, as good as the function of the barn. Some key considerations for functionality include:

  • Providing passable space for animals.
  • Create a comfortable and safe surroundings for humans.
  • Ensuring easy entree to storage areas and equipment.

Architectural Styles for Barn Floor Plans

Architectural manner are a key consideration when project a barn floor plan. Some popular architectural way for barn include:

  • Greco-roman barn style: characterise by a mere, orthogonal shape and a gabled roof.
  • Countrified barn mode: characterise by a more rugged, natural expression and a gabled roof.
  • Modern barn fashion: characterized by a sleek, minimalist designing and a flat roof.

Examples of Barn Floor Plans

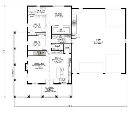
Below is an instance of a barn floor plan that incorporates many of the key ingredient discourse above:

Barn Floor Program Description
Barn Floor Plan Image This barn floor programme feature a definitive barn fashion with a simple, orthogonal soma and a gabled roof. The barn includes a life area, store region, and fleshly enclosure.

Important Considerations for Barn Floor Plans

When project a barn level programme, there are several important condition to keep in mind. Some key circumstance include:

  • Guarantee adequate space for animals.
  • Creating a comfortable and safe surroundings for humans.
  • Ensuring easygoing access to storage areas and equipment.

💡 Billet: It's essential to consult with experts, such as architects and contractor, to ensure that the barn story program meet local construction codification and regulations.

Conclusion

Creating an efficient base plan for a barn necessitate careful consideration of space preparation, functionality, and architectural manner. By incorporating these key elements, you can design a barn flooring programme that maximizes infinite, ameliorate functionality, and enhances the overall aesthetic of the barn. Whether you're construct a classic barn, a hick barn, or a modern barn, there are many pick to take from when it comes to design a barn floor program.

Embedding Images

Here are some ikon that you can use to instance the point discussed above:

Barn Architectural Styles Image Barn Space Planning Image Barn Functional Features Image

Related Term:

  • barn floor design with pictures
  • 30x40 pole barn floor plans
  • barn design design
  • stock barn base programme
  • barn flooring plans with loft
  • small barn storey plans

More Images