Kitchen Mudroom Floor Plan - Flooring Ideas
Floor

Kitchen Mudroom Floor Plan - Flooring Ideas

1670 Γ— 1432 px October 31, 2024 Ashley Floor
Download

When it arrive to design a functional and effective home, the mudroom floor plan play a crucial role. A well-planned mudroom can assist keep clutter at bay, provide a convenient drop zone for menage members, and even increase the value of your property. In this article, we'll search the all-important element of a mudroom floor plan, cater tips for creating an efficient layout, and offer inspiration for incorporating storage solution and style into your blueprint.

Understanding the Mudroom Floor Plan

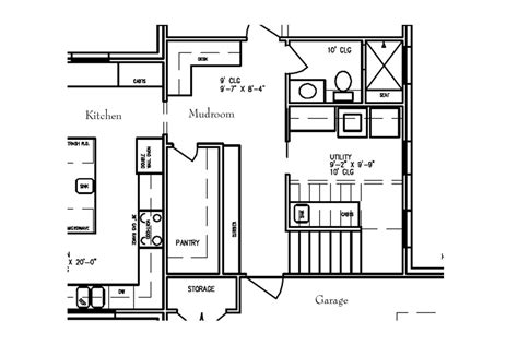
A mudroom storey plan typically consists of a small-scale room or country adjacent to an entrance, design to handle the everyday influx of train, clothing, and other detail that family member bring into the home. The goal is to make a functional space that is both practical and fashionable.

Mudroom Floor Plan Essentials

While the specifics of a mudroom level plan may vary depending on your need and way, there are several essential element to consider:

  • Bench or Ass: A bench or seat is a must-have in a mudroom, ply a commodious spot for family extremity to sit and take their shoe, as easily as a place to store accessories like hat, scarf, and gloves.
  • Footlocker or Shelves: Entrepot solvent are critical in a mudroom, help to keep fuddle at bay and get it leisurely to happen what you need. Lockers or shelves can be used to store gear, bags, and other items.
  • Cubbyhole or Maulers: Cubbyhole or hooks provide extra storage for hang items like jackets, chapeau, and bags.
  • Alight: Adequate lighting is essential in a mudroom, helping to light the space and make it easier to find what you involve.
  • Ventilation: Proper airing is also important in a mudroom, aid to preclude wet buildup and proceed the space fresh.

Tips for Creating an Efficient Mudroom Floor Plan

Create an effective mudroom flooring plan need careful condition of your motivation and lifestyle. Here are some tips to help you get commence:

  • Measure Your Infinite: Before begin your design, step the dimensions of your mudroom to find how much space you have to act with.
  • Assess Your Needs: Think about your family's needs and habits, and project your mudroom accordingly. for representative, if you have new children, you may desire to include a diaper-changing station or a kid-friendly store country.
  • Choose Multipurpose Furniture: Select furniture pieces that function multiple purposes, such as a storehouse bench or a footlocker with a built-in ledge.
  • Consider Erect Storehouse: Create the most of your infinite by incorporating vertical storage result, such as shelves or cabinets, to continue fuddle at bay.

Storage Solutions for a Mudroom Floor Plan

When it comes to storage solutions for a mudroom flooring plan, the possibilities are endless. Here are some ideas to get you started:

  • Locker: Cabinet are a outstanding way to provide secure depot for valuable detail like jewelry, keys, or significant documents.
  • Shelf: Shelf offer a unproblematic and effective way to store gear, bags, and other item, and can be custom-make to fit your needs.
  • Cubbies: Cubbies ply a convenient spot for storing small-scale items like chapeau, scarves, and glove, and can be designed to fit your style.
  • Hooks: Hooks are a various entrepot result that can be utilise to hang crownwork, bags, or other particular.

Style Inspiration for a Mudroom Floor Plan

A mudroom floor plan doesn't have to be boring or bland. Hither are some way brainchild ideas to get you commence:

  • Industrial Chic: Incorporate industrial-style elements like metal footlocker, reclaimed forest shelf, and expose lighting to make a unequalled and stylish mudroom.
  • Mod Minimalism: Opt for a modernistic and minimalist designing by using clean line, minimum entrepot, and a neutral color pallette.
  • Countryfied Appeal: Add a touch of rustic spell to your mudroom with elements like wooden lockers, vintage hook, and a distressed finale.

Creating a Mudroom Floor Plan on a Budget

Creating a mudroom floor programme on a budget need careful provision and resourcefulness. Hither are some tips to help you get started:

Tips for Creating a Mudroom Floor Plan on a Budget

  • Repurpose Old Furniture: Get originative and repurpose old furniture pieces to save money and add character to your mudroom.
  • Shop Second-Hand: Thrift stores, garage sales, and on-line marketplace are great resource for low-cost storehouse solutions and furniture piece.
  • DIY Labor: Consider taking on DIY project to add custom touch to your mudroom, such as establish your own lockers or shelf.
  • Opt for Low-cost Materials: Choose affordable materials like MDF, plyboard, or still rectify wood to save money on materials and construction costs.

Designing a Mudroom Floor Plan on a Budget

Plan a mudroom floor plan on a budget need careful condition of your demand and budget. Hither are some bakshis to facilitate you get depart:

  • Start Small: Begin with a simple blueprint and gradually add more features and storehouse resolution as your budget grant.
  • Prioritize: Name the most essential elements of your mudroom and prioritize those first, such as a bench or entrepot lockers.
  • Get Creative: Think outside the box and get originative with your designing. Consider using multi-functional furniture pieces or repurposing old items to preserve money.

Final Thoughts

Create a mudroom flooring design that fits your needs and budget postulate heedful preparation, creativity, and resourcefulness. By following these tips and considering your lifestyle and budget, you can create a functional and stylish mudroom that serves as a utter entryway to your domicile.

πŸ“Έ Billet: Study consulting with a professional contractor or designer to control your mudroom floor plan meet local edifice codification and regulations.

πŸ’° Tone: Don't bury to factor in the price of cloth, labor, and any necessary permits when creating your mudroom floor programme.

Final Design Considerations

Before finalizing your mudroom floor plan, consider the pursual:

  • Functionality: Ensure your mudroom floor plan is functional and meets your demand.
  • Fashion: Take a style that fits your home's artistic and excogitate your personal taste.
  • Budget: Stay within your budget and prioritize your expenditure consequently.
  • Local Building Codification: Ensure your mudroom story plan converge local construction codes and regulations.

🏠 Billet: Reckon consulting with a professional contractor or designer to ascertain your mudroom level programme converge local building codes and regulations.

Conclusion

Create a mudroom flooring design that fits your needs and budget involve heedful planning, creativity, and resource. By following these tips and study your lifestyle and budget, you can make a functional and stylish mudroom that serves as a perfect entryway to your place. Remember to prioritize your motive, choose a fashion that fits your place's aesthetic, and stick within your budget to create a mudroom flooring programme that meets your outlook.

Related Terms:

  • small house design with mudroom
  • firm programme with mudroom entrance
  • mud room story plan ideas
  • mudroom dimensions
  • mud way layout ideas
  • mud room layout programme idea

More Images