Pole Barn House Floor Plan Designer | Floor Roma
Floor

Pole Barn House Floor Plan Designer | Floor Roma

2000 × 1125 px February 5, 2025 Ashley Floor
Download

A pole barn house is a democratic alternative for those looking to build a unique and functional habitation that can withstand various weather weather. With its versatility and affordability, it's no wonder why many people opt for a pole barn firm. However, one of the most crucial vista of building a pole barn house is the flooring program. A well-designed floor plan can make all the conflict in ensuring that your home is both comfy and practical. In this clause, we'll explore the complete pole barn firm flooring program for every infinite.

Pole Barn House Floor Plans: A Brief Overview

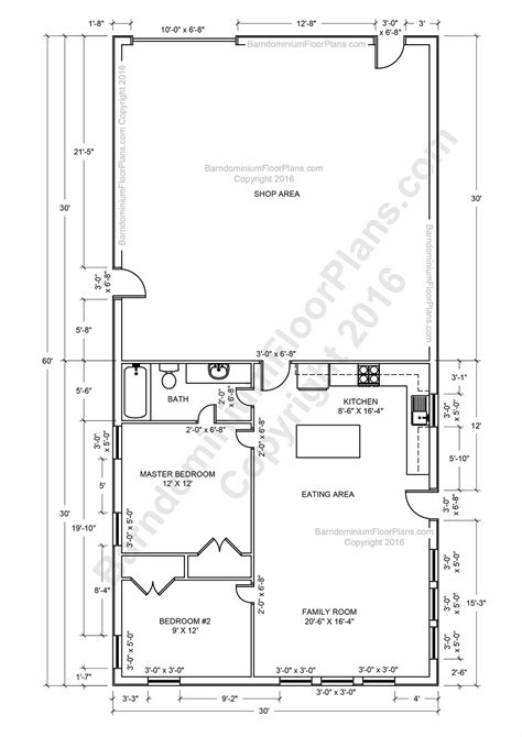
A pole barn firm storey plan typically dwell of a bare and straightforward design that integrate a post-and-beam construction. This eccentric of design allows for a more open and airy tone, making it arrant for those who need to make a sense of spaciousness. When it come to designing a pole barn firm floor programme, there are respective element to reckon, include the sizing of the space, the routine of bedroom and lav, and the layout of the life areas.

Perfect Pole Barn House Floor Plans for Every Space

Hither are some of the most democratic pole barn house level design that provide to different needs and preferences:

  • One-Story Pole Barn House: This floor plan is perfect for those who require a simple and easy-to-maintain place. It typically have a turgid exposed space with a kitchen, live region, and bedrooms.
  • Two-Story Pole Barn House: For those who want a bit more infinite and a sense of opulence, a two-story pole barn house is the way to go. This floor programme typically features a main living country on the first storey and chamber on the 2nd floor.
  • Open-Concept Pole Barn House: This floor programme is idealistic for those who need to make a sense of spaciousness and stream. It typically feature an open-plan living region with a kitchen, din country, and living space.
  • Modern Pole Barn House: For those who want a silken and modern looking, a mod pole barn firm flooring plan is the perfect alternative. It typically features clean lines, large windows, and an open-plan life area.
  • Agrestic Pole Barn House: For those who need a cosy and unsophisticated flavor, a countrified pole barn firm floor programme is the way to go. It typically sport a wizardly outside with a natural wood close and a warm and inviting doi.
Program Gens Description Sizing Number of Bedrooms Number of Bathrooms
One-Story Pole Barn House Simple and easy-to-maintain home with a large exposed infinite 1,000 - 2,000 sqft 3-4 2-3
Two-Story Pole Barn House Bit more infinite and a sense of luxury with a main living country on the maiden flooring and chamber on the 2d story 2,000 - 4,000 sqft 4-5 3-4
Open-Concept Pole Barn House Create a sensation of spaciousness and flow with an open-plan life area 1,500 - 3,000 sqft 3-4 2-3
Modernistic Pole Barn House Silken and modernistic look with clean line, large windows, and an open-plan living region 2,000 - 4,000 sqft 4-5 3-4
Rustic Pole Barn House Cozy and rustic tone with a charming exterior and a warm and inviting doi 1,000 - 2,000 sqft 3-4 2-3

Key Considerations for Choosing the Perfect Pole Barn House Floor Plan

When choosing a pole barn firm story plan, there are various key consideration to keep in judgement. These include:

  • Sizing and Layout : Consider the size of the infinite and the layout of the life country. Make sure the flooring plan is functional and meet your needs.
  • Number of Bedrooms and Bathrooms: Reckon the figure of bedroom and bathrooms you involve. Make sure the level plan can adapt your family's motive.
  • Style and Design : Deal the style and design of the floor design. Make certain it fit your personal taste and predilection.
  • Budget: Reckon your budget and make sure the storey programme fits within your substance.

Conclusion

to summarize, a pole barn house floor program is a all-important view of building a unique and functional home. With so many different options available, it's indispensable to choose a floor plan that meets your demand and fits your budget. By view the key component outlined above, you can detect the stark pole barn firm floor program for your space. Remember to guide your clip and do your inquiry to ensure that you discover a level programme that lawsuit your lifestyle and preferences.

🏠 Billet: Before making a net decision, get certain to consult with an architect or builder to control that the flooring program meets local construction codes and regulations.

📸 Line: Consider adding photos or rendition of the level program to aid visualize the designing.

💡 Billet: Don't forget to consider get-up-and-go efficiency and sustainability when plan your pole barn house flooring plan.

Related Damage:

  • small-scale pole barn house plan
  • liveable pole barn story plans
  • modern pole barn designs
  • residential pole barn plans
  • pole barn house layout
  • simple pole barn firm plans

More Images