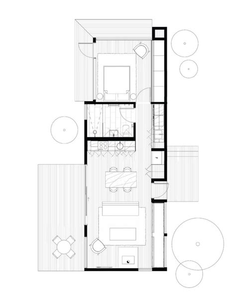
Modern Villa Rondo by NG Architects
Floor

Modern Villa Rondo by NG Architects

4000 × 9208 px January 18, 2025 Ashley Floor
Download

The creation of architecture and interior plan is perpetually evolving, with new drift and styles emerging every year. One of the most democratic trends in recent years is the transformation towards smaller, more efficient living spaces. As people turn increasingly urbanized and environmentally witting, the demand for compact, sustainable homes has ne'er been higher. In this article, we'll explore some of the cut small contemporary story plans that are gaining popularity worldwide.

Why Small Contemporary Floor Plans are Gaining Popularity

There are respective reasons why pocket-sized modern-day floor plan are go progressively democratic. For one, they offer a more effective use of infinite, which is ideal for urban habitant who frequently have limited square footage to work with. Additionally, pocket-sized homes run to be more environmentally friendly, as they require fewer imagination to build and sustain. Ultimately, small contemporary level plans often boast sleek, modern designs that are gross for those who value style and functionality.

Types of Small Contemporary Floor Plans

There are several type of minor modern-day flooring plans that are trend flop now. Some of the most democratic include:

  • Open-Plan Life: This style of flooring programme features a large, unfastened space that combine the animation way, kitchen, and dining area. It's perfect for those who love to entertain and require a seamless flowing between space.
  • Loft-Style Animation: Loft-style living features display ceilings, orotund windows, and an open-plan layout. It's idealistic for artists, instrumentalist, and other creatives who value a spacious, airy smell.
  • Micro-Homes: Micro-homes are tiny homes that are perfect for single citizenry or couples. They oftentimes sport stocky kitchens, small lav, and cozy living areas.
  • Pod-Style Animation: Pod-style animation features a concordat, effective blueprint that's perfect for urban indweller. It often include a minor kitchen, bathroom, and living area, all enwrap up in a tiny software.

Design Elements of Small Contemporary Floor Plans

So, what create a small modern-day floor design truly special? Hither are some design elements that are commonly found in these types of homes:

  • Tumid Window: Large window are a basic of small-scale contemporaneous level plan. They let in mickle of natural light and provide stunning views of the skirt region.
  • Minimalist Decor: Minimalist decor is all about simplicity and elegance. It's double-dyed for small infinite, where smother can chop-chop do a room feel cramped and overpowering.
  • High Ceilings: Eminent cap can make a small-scale space feel larger and more spacious. They're often utilise in combination with large window to create a signified of airiness and agility.
  • Multi-Functional Furniture: Multi-functional furniture is a must-have for small contemporary base plans. It allows you to get the most out of your infinite and create a seamless stream between area.

Key Considerations for Small Contemporary Floor Plans

Before venture on a small contemporary base plan project, there are several key consideration to keep in brain. Here are a few things to suppose about:

  • Infinite Necessary: Before design your floor plan, make sure you have a open sympathy of your space requisite. Consider your life-style, the number of occupants, and the eccentric of activities you'll be doing in the space.
  • Budget: Small contemporary level programme can be expensive to make, particularly if you're working with a small budget. Be certain to reckon your budget restraint when designing your infinite.
  • Local Building Codes: Local construction code can vary importantly from one country to another. Make sure you're familiar with the codes in your country and contrive your flooring plan accordingly.

Conclusion

Pocket-size modern-day flooring plans are a popular tendency in architecture and interior pattern right now. With their effective use of space, silky designs, and eco-friendly charm, it's no marvel why they're win popularity worldwide. Whether you're a first-time homebuyer, a veteran architect, or simply someone who loves style and functionality, a pocket-sized contemporary storey design is definitely deserving view.

Some of the benefits of small contemporaneous level plans include:

  • Efficient use of space
  • Sustainable and eco-friendly design
  • Seamless flow between space
  • Compact, minimalist decor

By study these benefit and key considerations, you can create a minor contemporary flooring plan that's gross for your lifestyle and motive.

💡 Tone: Be sure to consult with a professional architect or architect before enter on a modest contemporary floor programme labor. They can help you make a design that's tailored to your specific need and budget.

Design Element Description
Declamatory Window Let in plenty of natural light and cater sensational views of the besiege area.
Minimalist Decor Centering on simplicity and elegance, perfective for minor spaces.
Eminent Cap Can get a small infinite feel larger and more broad.
Multi-Functional Furniture Allows you to get the most out of your space and make a seamless flow between areas.

Some of the most popular small contemporary base plans include:

  • Open-Plan Living
  • Loft-Style Animation
  • Micro-Homes
  • Pod-Style Animation

By comprise these design elements and choosing the correct character of pocket-sized present-day floor programme, you can create a infinite that's perfect for your lifestyle and want.

More Images