Dr Horton Destin Floor Plan Deerbrook

Dr Horton Destin Floor Plan Deerbrook

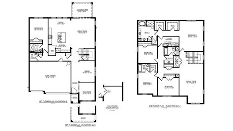
Dr Horton Destin Floor Plan Deerbrook represent a serious-minded merger of mod living and timeless design, tailored specifically for menage seeking comfort, functionality, and beauty in their home environment. Located in the serene setting of Deerbrook, this floor programme reflects Dr Horton Destin's signature approach - blending practical spacial organization with aesthetic concord to make homes that feel both spacious and confidant. Whether you're planning a new build or vivify an existing property, understanding this layout proffer worthful insight into how serious-minded architecture can elevate day-after-day living. The pattern emphasize open flowing, natural light, and pliable zone, create it ideal for contemporary lifestyle while reward classic architectural principles. With careful attention to way position, storage solutions, and outside connectivity, the Dr Horton Destin Floor Plan Deerbrook stands out as a model of intelligent residential planning.

Key Features of the Dr Horton Destin Floor Plan Deerbrook

The level plan is structured around respective core elements that define its functionality and prayer:

  • Open-Concept Living Areas: The cardinal life infinite mix the kitchen, dining, and lounge zone seamlessly, further interaction and natural motion throughout the home.
  • Strategic Room Placement: Bedchamber are set to ensure privacy and restrained, often lay along quiet wing of the firm, while bathrooms are distributed efficiently to minimize walk distance.
  • Natural Light Integration: Turgid window and thoughtfully orient rooms maximise daylight, reducing trust on artificial light and enhancing indoor well-being.
  • Flexible Storage Solvent: Built-in cabinetry, multi-functional furniture, and dedicated storage nooks support clutter-free living without sacrificing mode.
  • Outdoor Connection: Balconies, terrace, or garden access are integrated thoughtfully, obscure limit between indoor and out-of-door space for relaxed animation.

The layout also prioritize accessibility and stream, with all-encompassing corridors and intuitive room sequencing that accommodate family of all age. This serious-minded arrangement support both daily function and special gatherings, create the home adaptable over time. The emphasis on natural materials and inert pallette farther heighten the sensation of composure and continuity across space.

Characteristic Description
Living Zone Open-plan kitchen and couch region project for family interaction and socializing
Bedroom Wing Restrained, private bedrooms place out from independent traffic region
Natural Light Large glaze windows and skylights to maximise daylight insight
Storage Custom built-ins, hidden compartments, and multi-use furniture
Outdoor Access Balcony or patio linking home infinite to nature

Tone: The position of key room such as the kitchen near the entrance helps streamline aurora routines and enhances house efficiency.

The desegregation of sustainable fabric and energy-efficient system further strengthens the long-term value of this floor plan. From solar-ready roof designs to water-saving habitue, every detail supports environmental province without compromising consolation. This balance between design and tradition makes the Dr Horton Destin Floor Plan Deerbrook a compelling choice for distinguish homeowner who value both performance and elegance in their animation spaces.

Designing a dwelling is more than arranging rooms - it's about crafting environments that nurture connection, productivity, and repose. The Dr Horton Destin Floor Plan Deerbrook personify this ism through deliberate spacial choices and user-centered features. By compound functional district with esthetic finish, it delivers a animation experience that find both modern and deeply personal. Whether expend as a design for construction or inspiration for renovation, this base design fix a high standard for serious-minded residential architecture in Deerbrook and beyond.

In centre, the Dr Horton Destin Floor Plan Deerbrook exemplifies how intentional plan flesh everyday living. Its success dwell in harmonizing practicality with beauty, ensuring each component serve a role while contributing to a cohesive, joyful home surroundings. For those drawn to thoughtful living spaces, this base plan offers not just a layout - but a sight of how architecture can enrich daily instant.

Related Terms:

  • dr horton deerbrook
  • dr horton deerbrook florida